EasyManua.ls Logo

Vertiv Liebert MCV330 - DPN004954

Vertiv Liebert MCV330
140 pages
Print Icon
To Next Page IconTo Next Page
To Next Page IconTo Next Page
To Previous Page IconTo Previous Page
To Previous Page IconTo Previous Page
Loading...
REV : 3
REV DATE : 4/22
DPN004954
Page :1 /1
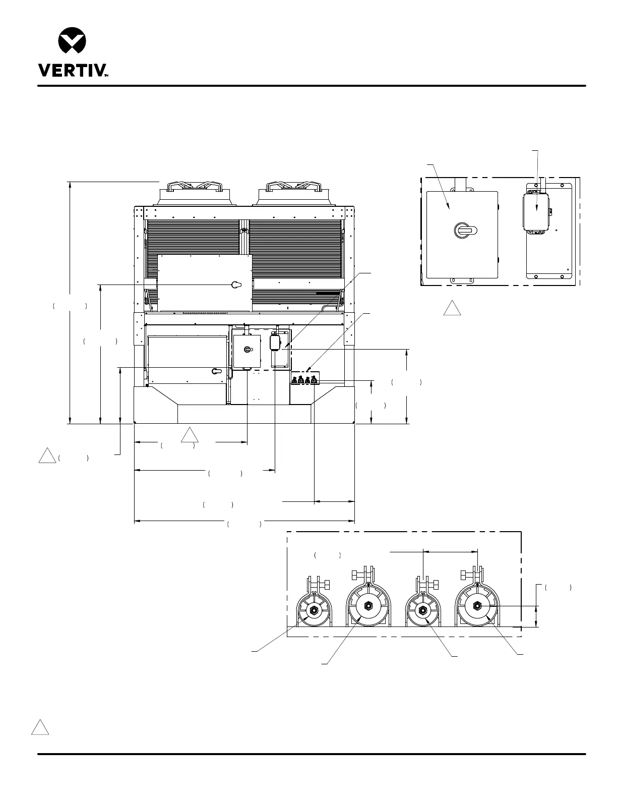
LIEBERT® MCV330 + LIEBER ECONOPHASE
+ BASE ASSY 380V & 415V
Form No.: DPN001040_REV4
PRIMARY CONNECTION LOCATIONS
LIEBERT
®
HEAT REJECTION SKID
LOW VOLTAGE CUSTOMER
CONNECTION
(Field Electrical Connections)
(PIPING CONNECTIONS)
7/8" LIQUID LINE
CIRCUIT 1
1 3/8" HOT GAS
CIRCUIT 1
7/8" LIQUID LINE
CIRCUIT 2
1 3/8" HOT GAS
CIRCUIT 2
Front View
B
DETAIL B
A
DETAIL A
101 1/4"
2572mm
18 5/8"
473mm
u 1/2" (13mm)
19 11/16"
501mm
CIRCUIT 1
CIRCUIT 2
3"
76mm
u 1/2" (13mm)
TYP.
111"
2819mm
64 11/16"
1644mm
CENTER OF BOX
34"
864mm
BOTTOM OF BOX
52"
1320mm
CENTER OF BOX
HIGH VOLTAGE CUSTOMER
CONNECTION
1 3/16"
29mm
25 13/16"
655mm
BOTTOM OF BOX
Notes:
1. Field to provide hole for conduit for high voltage disconnect box and low voltage distribution panel.
2. High Voltage Customer Connection for:
Voltage Codes: 2=(380V/3 Phase/60Hz); G=(415V/3 Phase/50Hz)
2
2
2
63 11/16"
1617mm

Table of Contents

Related product manuals