EasyManua.ls Logo

Vertiv Liebert MCV330 - 10032073

Vertiv Liebert MCV330
140 pages
Print Icon
To Next Page IconTo Next Page
To Next Page IconTo Next Page
To Previous Page IconTo Previous Page
To Previous Page IconTo Previous Page
Loading...
REV : B
REV DATE : 3/24
10032073
Page :1 /2
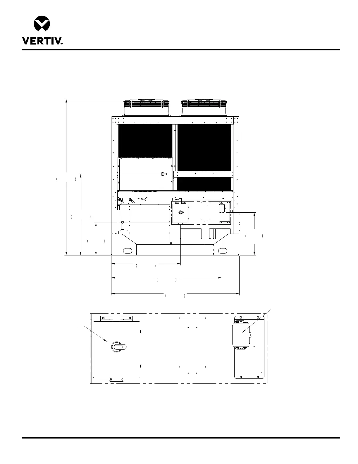
LIEBERT® MCV MCV430 + LIEBER ECONOPHASE + BASE ASSEMBLY
Form No.: DPN001040_REV4
PRIMARY CONNECTION LOCATIONS
LIEBERT
®
HEAT REJECTION SKID
Notes:
1. Field to provide hole for conduit for high voltage disconnect box
and low voltage distribution panel.
Front of Unit
Circuit 1 Circuit 2
54 3/4"
1390mm
Center of Box
87 1/2"
2223mm
Center of Box
101 1/4"
2572mm
25 3/4"
655mm
Bottom of Box
34"
864mm
Bottom of Box
A
DETAIL A
(Field Electrical Connections)
High Voltage
Customer
Connection
LowVoltage
Customer
Connection
123 1/2"
3138mm
64 1/4"
1632mm

Table of Contents

Related product manuals