EasyManua.ls Logo

Vertiv Liebert MCV330 - DPN004257

Vertiv Liebert MCV330
140 pages
Print Icon
To Next Page IconTo Next Page
To Next Page IconTo Next Page
To Previous Page IconTo Previous Page
To Previous Page IconTo Previous Page
Loading...
REV : 4
REV DATE : 4/22
DPN004257
Page :1 /1
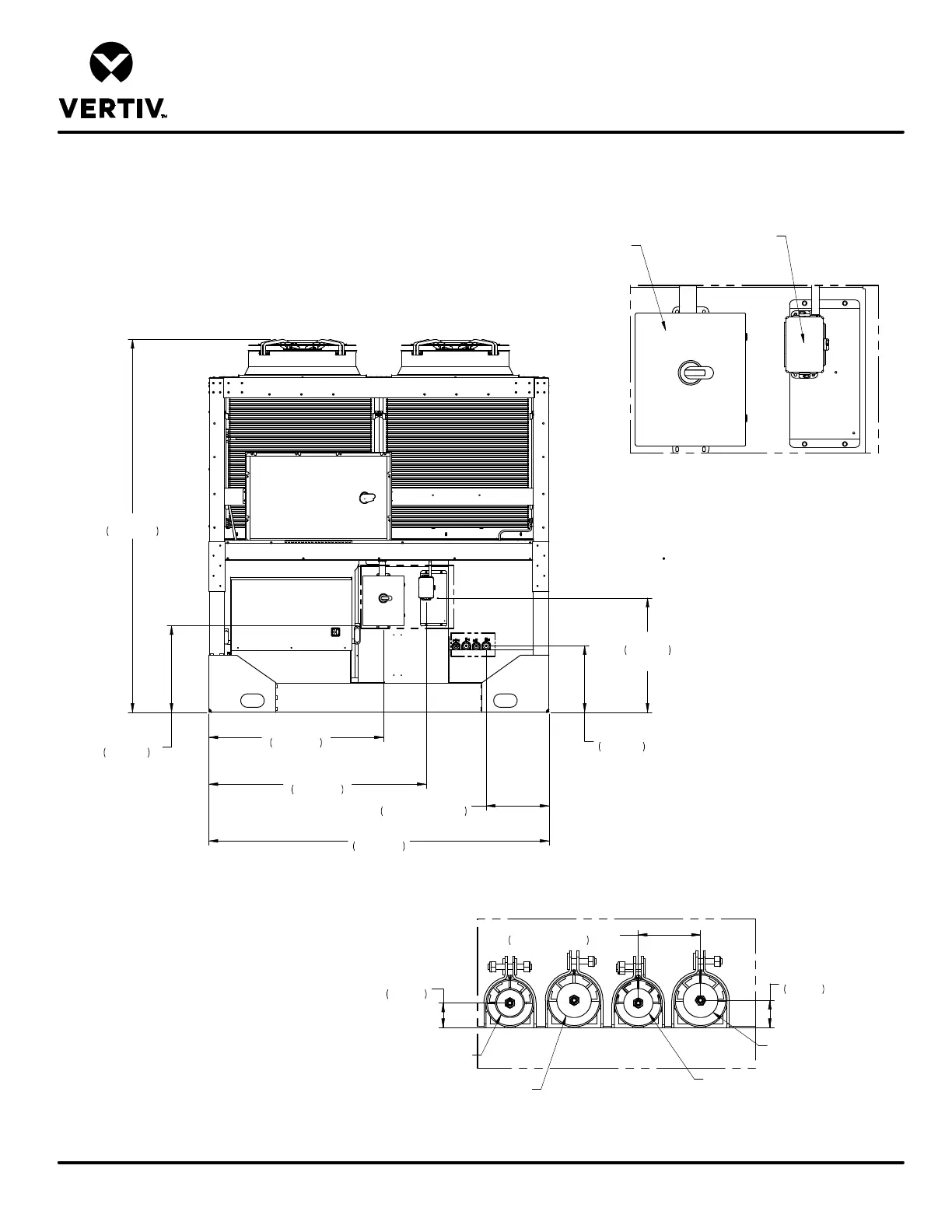
LIEBERT® MCV440 + LIEBER ECONOPHASE + BASE ASSEMBLY
Form No.: DPN001040_REV4
PRIMARY CONNECTION LOCATIONS
LIEBERT
®
HEAT REJECTION SKID
Notes:
1. Field to provide hole for conduit for high voltage disconnect box
and low voltage distribution panel.
Front
B
DETAIL B
(Field Electrical Connections)
A
DETAIL A
(Piping Connections)
101 1/4"
2572mm
18 11/16" ±1/2"
475mm ±13mm
64 11/16"
1644mm
Center of Box
34"
864mm
Bottom of Box
19 13/16"
504mm
Circuit 1 Circuit 2
3" ±1/2"
76mm ±13mm
Typ.
1 5/16"
33mm
Typ.
1 3/16"
29mm
Typ.
1-3/8" Liquid Line
Circuit 1
1-3/8" Liquid Line
Circuit 2
1-5/8" Hot Gas Line
Circuit 1
1-5/8" Hot Gas Line
Circuit 2
27 13/16"
706mm
Bottom of Box
52"
1320mm
Center of Box
High Voltage Customer
Connection
Low Voltage Customer
Connection
111"
2819mm

Table of Contents

Related product manuals