EasyManua.ls Logo

VIDEOJET 6210 - Printer Dimensions

Default Icon
72 pages
Print Icon
To Next Page IconTo Next Page
To Next Page IconTo Next Page
To Previous Page IconTo Previous Page
To Previous Page IconTo Previous Page
Loading...
Videojet 6210 Operator Manual
Rev AB Printer Dimensions 6-5
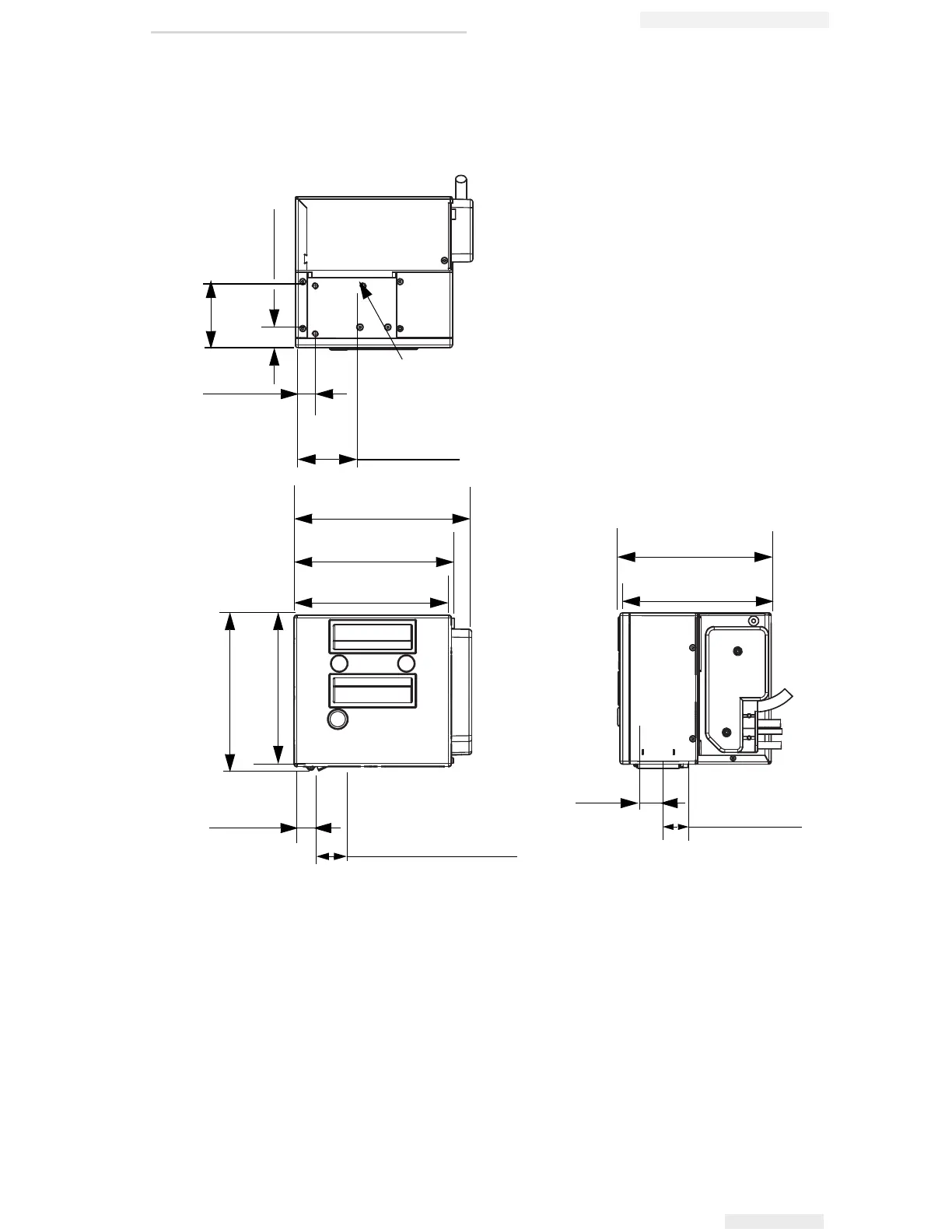
Printer Dimensions
Figure 6-1 shows the dimensions of the Videojet 6210 (RH) printer.
Figure 6-1: Videojet 6210 30 mm RH Printer Dimensions
64.50 mm (2 PLCs)
14.50 mm
20.73 mm (2 PLCs)
70.73 mm
M6 Tapped Holes
Thread Depth 6.00
3 Places
158.00 mm
Printhead Retracted
162.50 mm
25.70 mm
32.50 mm
159.60 mm
157.80 mm
32.00 mm
Printable Area
26.20 mm
185.30 mm
167.15 mm
164.00 mm
(7.30 inches)
(6.58 inches)
(6.46 inches)
(6.39 inches)
(6.22 inches)
(1.01 inches)
(6.28 inches)
(6.21 inches)
(1.03 inches)
(0.6 inches)
(2.54 inches)
(0.82 inches)
(1.26 inches)
Printhead Stroke
(1.28 inches)
(2.78 inches)

Table of Contents

Related product manuals