EasyManua.ls Logo

VIDEOJET 6210 - Page 71

Default Icon
72 pages
Print Icon
To Next Page IconTo Next Page
To Next Page IconTo Next Page
To Previous Page IconTo Previous Page
To Previous Page IconTo Previous Page
Loading...
Videojet 6210 Operator Manual
6-6 Printer Dimensions
Rev AB
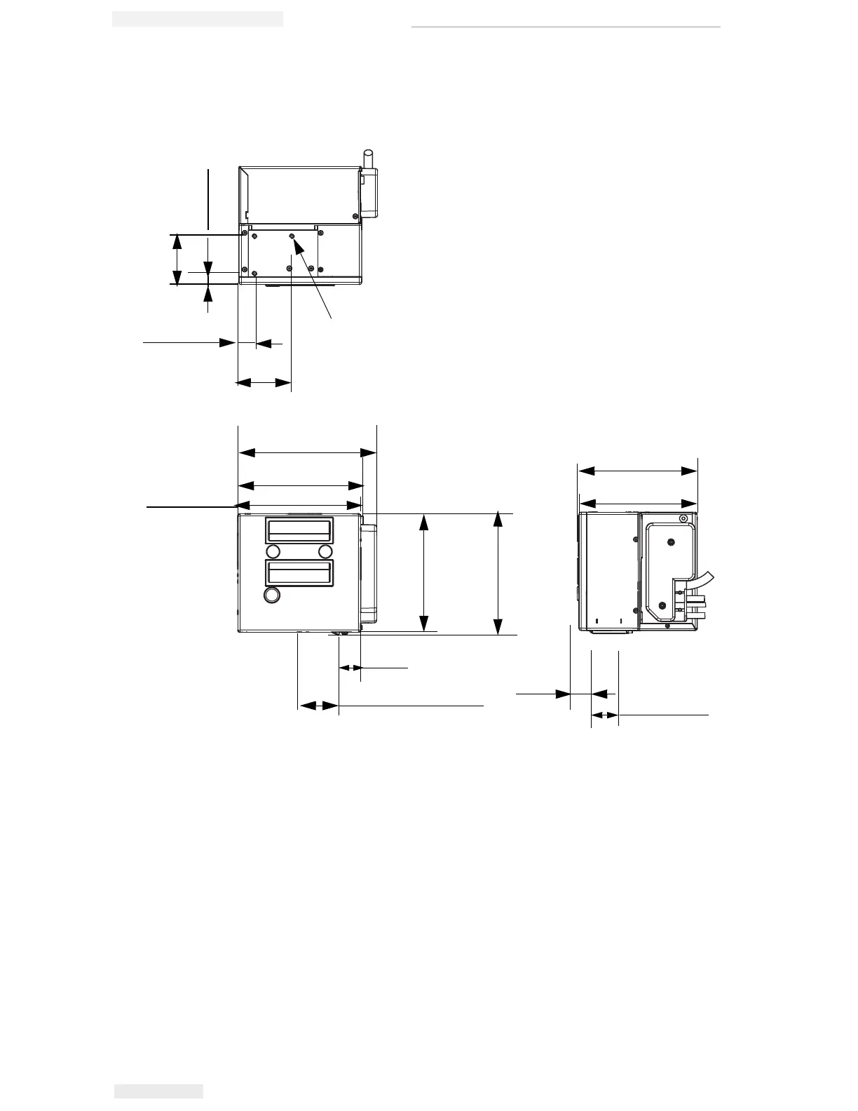
Figure 6-2 shows the dimensions of the Videojet 6210 30 mm (LH)
printer.
Figure 6-2: Videojet 6210 30 mm LH Printer Dimensions
64.50 mm 2 PLCS
14.50 mm
20.73 mm 2 PLCS
70.73 mm (2.78 inches)
M6 Tapped Holes
Thread Depth 6.00
3 Places
164.00 mm
167.15 mm
185.30 mm
Printhead Retracted
162.50 mm
158.00 mm
29.0 mm
157.80 mm
159.60 mm
32.00 mm
Printable Area
32.50 mm (1.28 inches)
26.20 mm
(7.29 inches)
(0.57 inches)
(2.54 inches)
(0.82 inches)
(6.58 inches)
(6.46 inches)
(6.22 inches)
(6.39 inches)
(1.14 inches)
Printhead Stroke
(6.28 inches)
(6.21 inches)
(1.03 inches)
(1.26 inches)

Table of Contents

Related product manuals