EasyManua.ls Logo

VIDEOJET 6210 - Page 72

Default Icon
72 pages
Print Icon
To Previous Page IconTo Previous Page
To Previous Page IconTo Previous Page
Loading...
Videojet 6210 Operator Manual
Rev AB Printer Dimensions 6-7
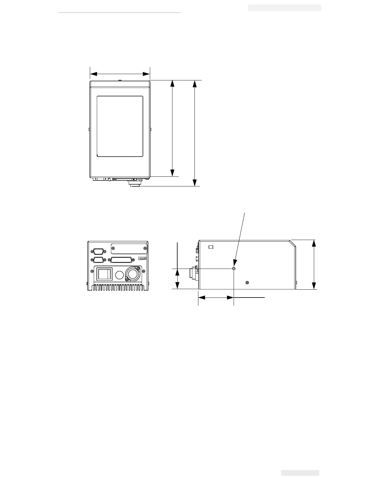
Figure 6-3 shows the dimensions of the CLARiTY controller.
Figure 6-3: CLARiTY Controller Dimensions
208.35 mm
191.25 mm
41.00 mm
M6 Female Thread
Both Sides.
Thread Depth 6.00
96.90 mm
118.90 mm
69.20 mm
(2.72 inches)
(4.68 inches)
(7.53 inches)
(8.2 inches)
(3.81 inches)
(1.61 inches)

Table of Contents

Related product manuals