EasyManua.ls Logo

Viessmann VITOGAS - Page 13

Viessmann VITOGAS
64 pages
Print Icon
To Next Page IconTo Next Page
To Next Page IconTo Next Page
To Previous Page IconTo Previous Page
To Previous Page IconTo Previous Page
Loading...
Note
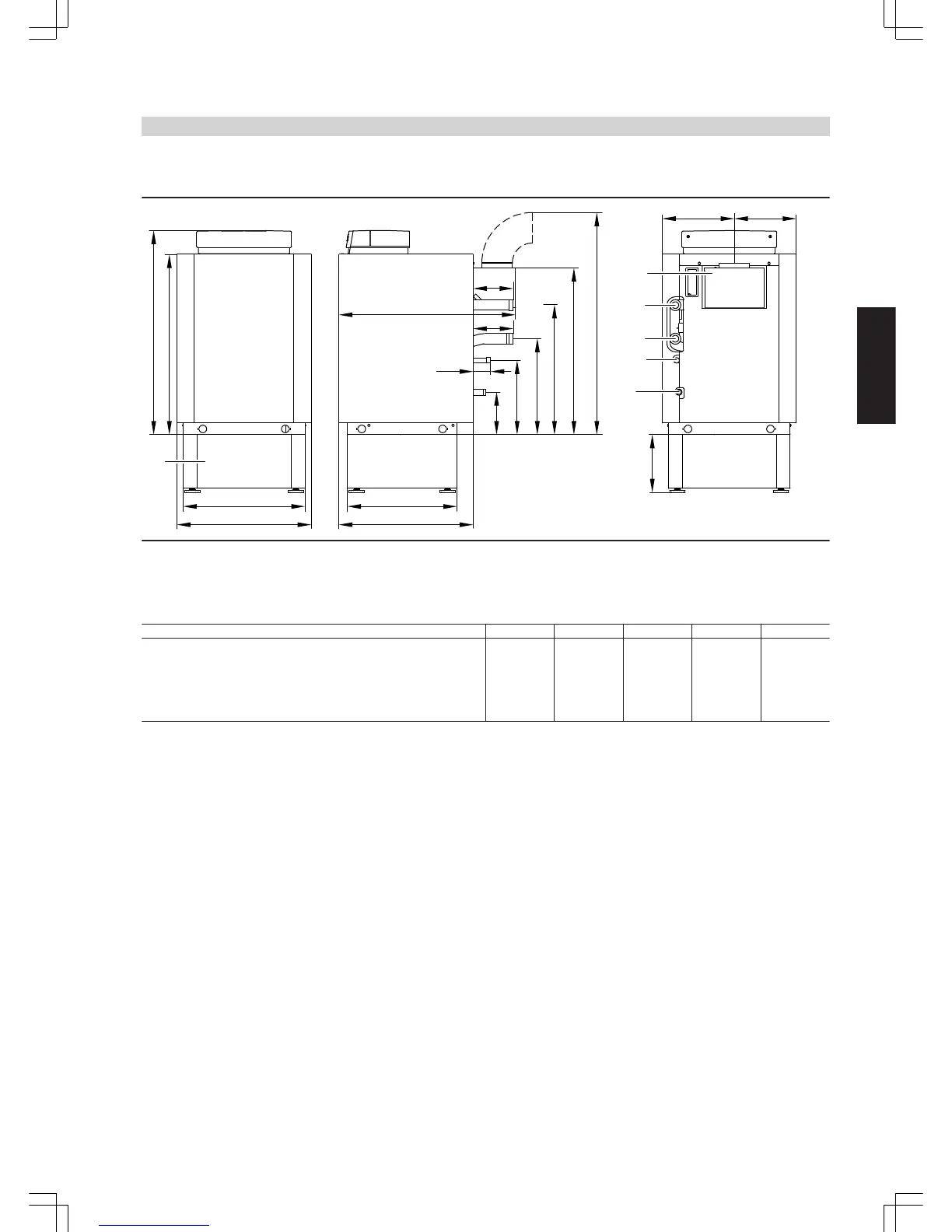
If the gas supply pressure exceeds the maximum permitted value, install a separate gas pressure governor upstream of the system.
fe
SSI
KV
KR
GA
E
d
179
316
409
554
716
173
173
250
580
457
b
a
775
877
A
c
78
A
Subframe (accessory)
E Drain and diaphragm expansion vessel
GA Gas connection
KR Boiler return
KV Boiler flow
SSI Draught hood
Dimensions
Rated output kW 29 35 42 48 60
a mm 596 706 796 886 1076
b mm 650 760 850 940 1130
c mm 760 780 780 780 780
d mm 1012 1012 1012 1082 1082
e mm 359 403 449 495 586
f mm 291 357 401 445 544
Vitogas 100-F
(cont.)
VITOGAS
VIESMANN
13
5822 428 GB
2

Table of Contents

Related product manuals