EasyManua.ls Logo

VWR Puranity TU3+ - Page 78

Default Icon
84 pages
Print Icon
To Next Page IconTo Next Page
To Next Page IconTo Next Page
To Previous Page IconTo Previous Page
To Previous Page IconTo Previous Page
Loading...
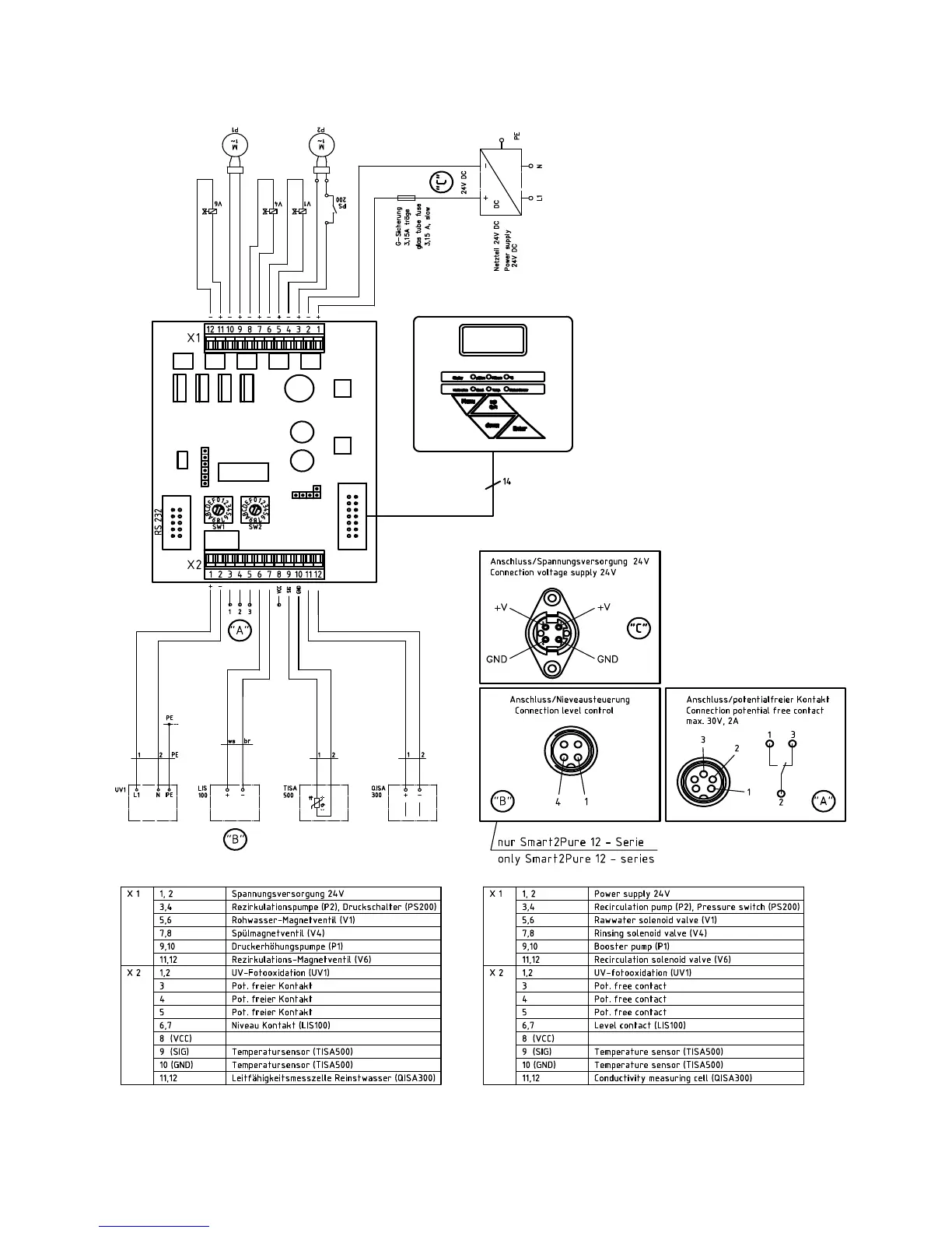
| Terminal assignment
70
|
Puranity TU+ VWR
Chapter 17

Table of Contents