EasyManua.ls Logo

WITTUR Hydra PLUS - Page 50

WITTUR Hydra PLUS
76 pages
Print Icon
To Next Page IconTo Next Page
To Next Page IconTo Next Page
To Previous Page IconTo Previous Page
To Previous Page IconTo Previous Page
Loading...
CAR DOOR HYDRA PLUS
PORTE DI CABINA HYDRA PLUS
16.10.2015
Code/Codice
Version/Versione
TC.2.001981.EN
/
Code/Codice
Version/Versione
Date/Data
Page/Pagina
3201.30.0600V01
B
24.11.2010
4.2
Subject to change without notice! Soggetto a modifica senza preavviso!
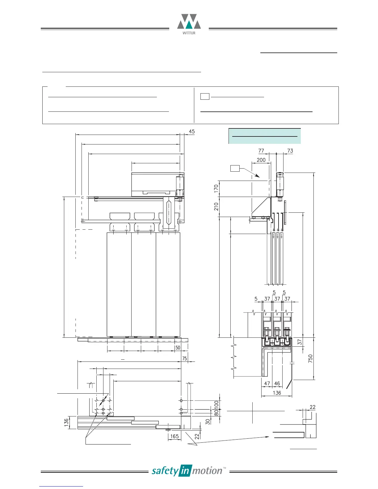
THREE PANELS TELESCOPIC CAR DOOR, TYPE 32/R-L PL=600÷2100
PORTA DI CABINA TELESCOPICA 3 ANTE, TIPO 32/R-L PL=600÷2100
GW
PL
= CLEAR OPENING
HS = LH+HW=
UNDERSIDE OF MOUNTING
LH =
CLEAR OPENING
HW
(min.180)
ALTERNATIVE FIXINGS
PASSAGGIO LIBERO
LUCE H
APPOGGIO STAFFE
FISSAGGI ALTERNATIVI
OPTIONAL CHANGING
VARIANTE A RICHIESTA
RUNBY
EXTRACORSA
FIXING HOLES M10
FORI PER VITI M10
PORTA SX
LEFT HAND
A DISEGNO
AS DRAWN
PORTA DX
RIGHT HAND
SIMMETRICA
SYMMETRICALLY
OPPOSITE
FOR SCHEDULE SEE page 4.2.t
TABELLA VARIABILI A pag. 4.2.t
GM
P
HS+385
(ECO)
LH+145
HS+210
C1 C C C
WS
~
1.333 PL
D2
D1
D
HS+465
(MIDI-SUPRA)
A
WITH SEMI-AUTOMATIC TYPE SIZES DON’T CHANGEXXXXXXXXXXXX
CON IL MODELLO SEMIAUTOMATICO LE MISURE NON CAMBIANO
WITH C.D.L. DIMENSIONS DON’T CHANGE; DETAIL ON PAGE 1.20 AND 1.21I
CON IL B.F.P. LE DIMENSIONI NON CAMBIANO; DETTAGLIO PAG. 1.20 E 1.21
DETAIL ON PAGE 1.11 AND 1.11.1
DETTAGLIO PAG. 1.11 E 1.11.1
NOTE
FOR APPLICATION OF ECO-MIDI-SUPRA DRIVE SEE PAGE 1.5
APPLICAZIONE MOTORIZZAZIONE ECO-MIDI-SUPRA SECONDO PAGINA 1.5
A
395
(ECO)
505
(MIDI-SUPRA)

Related product manuals