EasyManua.ls Logo

Worcester GB162-100

Worcester GB162-100
96 pages
To Next Page IconTo Next Page
To Next Page IconTo Next Page
To Previous Page IconTo Previous Page
To Previous Page IconTo Previous Page
Loading...
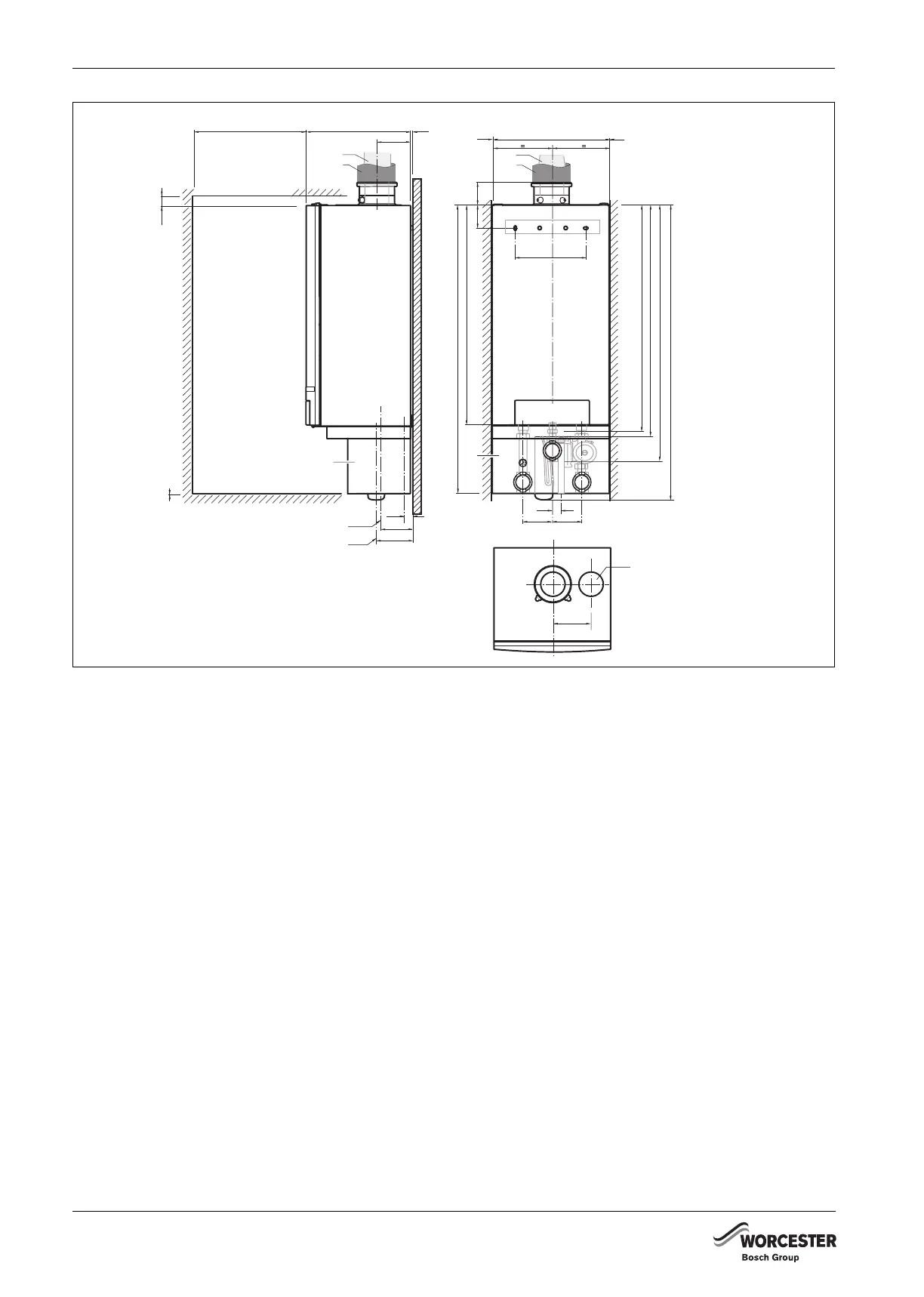
DIMENSIONS OF BOILER
6 720 648 726 (2011/07)
18
Fig. 7 Dimensions and connections WITH pump group (dimensions in mm)
1) The pump group is an accessory which has to be ordered separately.
CDO Condensate drain outlet; Ø 24 mm O/D
CHF CH (boiler) flow; G1½’’ union nut with female thread
CHR CH (boiler) return; G1½’’ union nut with female thread
CS Cap (DO NOT remove)
FGC/AIC Flue gas/air intake connection: Ø 80/125 for GB162-65 and Ø 100/150 for GB162-80/100
GAS B Gas connection to boiler; G1’’ female thread
GAS P Gas connection to pump group; Rp1’’ female thread
PF Pump group flow; G1½’’ male thread, flat seal
PR Pump group return; G1½’’ male thread, flat seal
The servicing clearances required are:
in front: 50 mm
below: 0 mm (250 mm with pump group)
right side: 0 mm
left side: 0 mm
above: 30 mm.
The position selected for installation MUST allow
adequate space for servicing in front of the boiler:
in front: 550 mm
below: 350 mm
right side: 0 mm
left side: 0 mm
above: 40 mm.
CDO
1280
980
1003
1030
1186
1310
135
103.5
520
300
140
130 130
39
35
138
162
465
6
152
FGC
AIC
FGC
AIC
CHF CHRGAS B
PF PRGAS A
CDO
CS
PF/PR
550
40
0
0
0
1)
1)
6 720 648 726-007.1TD

Table of Contents

Other manuals for Worcester GB162-100

Related product manuals