EasyManua.ls Logo

Yale SHAW-BOX - 4 Installation; 4.9.12 Electric Motors and Related Equipment; 4.11 Reeving Rope

Yale SHAW-BOX
102 pages
Print Icon
To Next Page IconTo Next Page
To Next Page IconTo Next Page
To Previous Page IconTo Previous Page
To Previous Page IconTo Previous Page
Loading...
3 Introduction
14 03.2018
ba-o.2.6.0-us-1.1-y | A11867501 Rev AA
3 Introduction
Wire rope hoists are intended for lifting freely movable loads.
The modular concept of our series of wire rope hoists permits a multitude of variations on
the basis of series components.
The design is characterized by the rope drum and hoist motor being arranged in parallel.
The hoist drive is a cylindrical rotor motor with a separately activated D.C. brake. Its
design complies with the FEM calculation regulations which are adapted to the
requirements of hoist operation.
The main components of the wire rope hoist are the hoist motor, the gear, the rope drum
and the control box with connection parts.
Our certified quality assurance system to DIN ISO 9001 guarantees consistently high
quality.
14
15
16
17
18
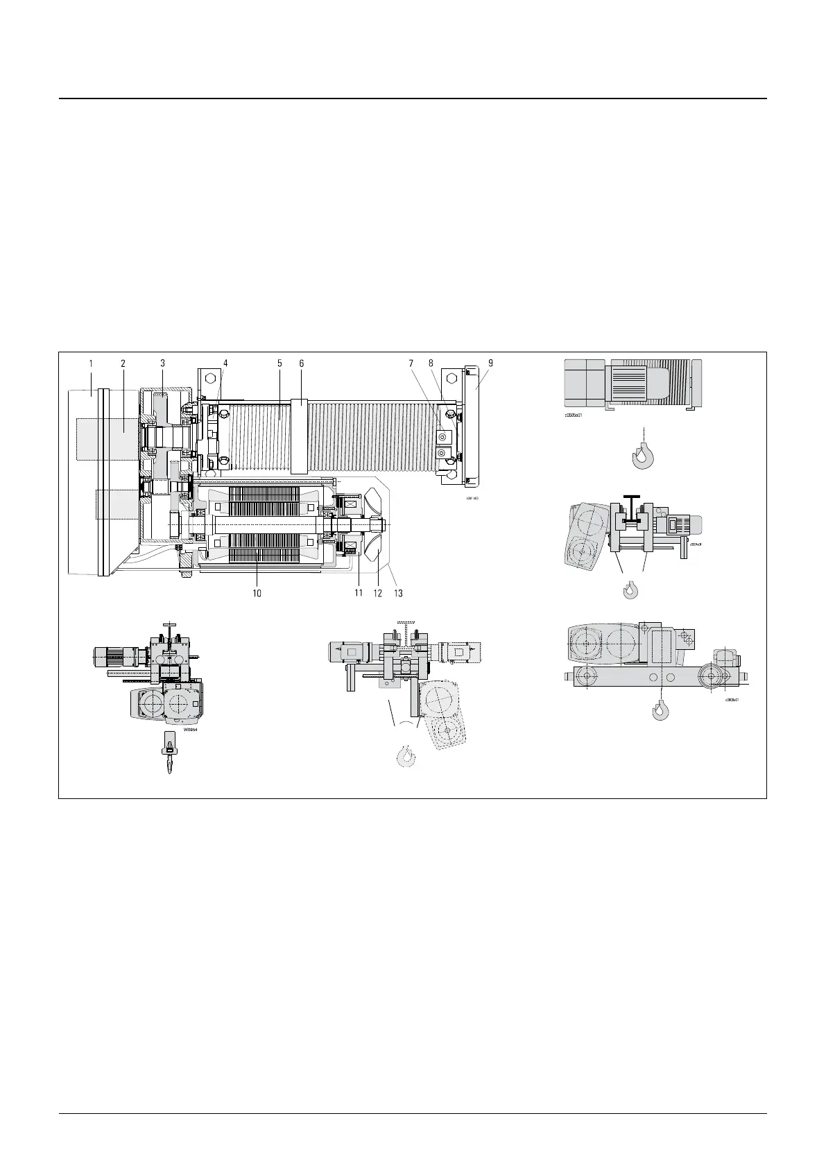
Fig. 5
1 Panel box with connection parts
2 Emergency hoist limit switch, operational hoist limit switch
3 Gear
4 Mounting point for safety brake (YKB/SKB YKE/SKE)
5 Rope drum
6 Rope guide with rope tensioning spring
7 Clamps for rope attachment
8 Rope drum bearing
9 End cover
10 Motor
11 Brake
12 Fan
13 Fan cover
14 Stationary wire rope hoist, hoist for incorporation
15 Wire rope hoist with short headroom” monorail trolley
16 Wire rope hoist with “standard headroom” monorail trolley
17 Wire rope hoist with “articulated” monorail trolley
18 Wire rope hoist with double rail trolley

Table of Contents

Related product manuals