EasyManua.ls Logo

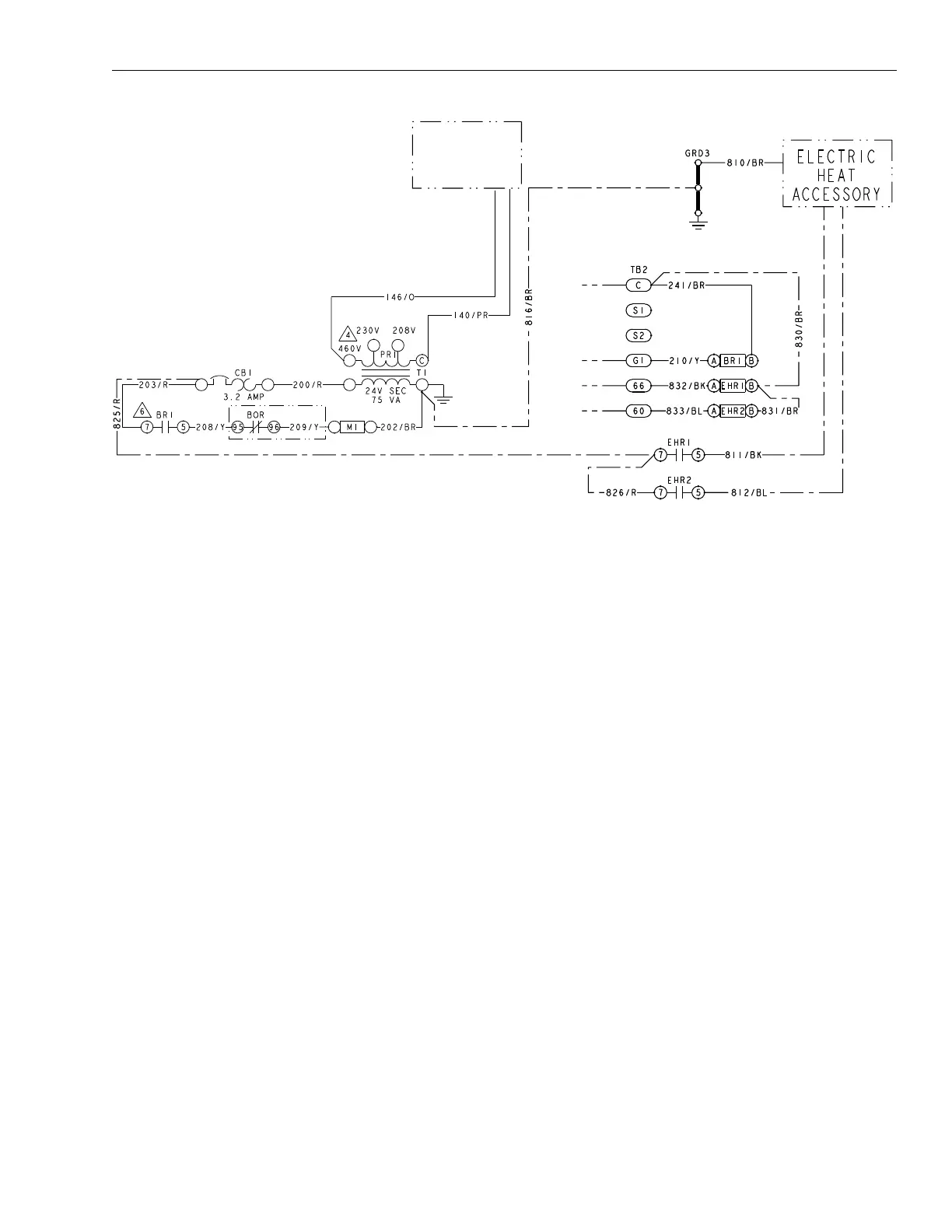
York NM120-240 - Typical Simplified Field Wiring Diagram - NL090 Evaporator

York NM120-240
128 pages
Print Icon
To Next Page IconTo Next Page
To Next Page IconTo Next Page
To Previous Page IconTo Previous Page
To Previous Page IconTo Previous Page
Loading...
505428-YTG-V-0417
Johnson Controls Unitary Products 121
Typical Simplified Field Wiring Diagram – NL090 Evaporator
UNIT
POWER
SUPPLY

Table of Contents

Related product manuals