EasyManua.ls Logo

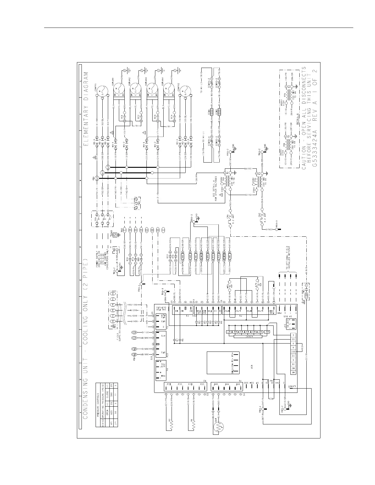
York NM120-240 - Typical YC300 Wiring Diagram

York NM120-240
128 pages
Print Icon
To Next Page IconTo Next Page
To Next Page IconTo Next Page
To Previous Page IconTo Previous Page
To Previous Page IconTo Previous Page
Loading...
505428-YTG-V-0417
Johnson Controls Unitary Products 77
Typical YC300 Wiring Diagram

Table of Contents

Related product manuals