EasyManua.ls Logo

York NM120-240 - Typical Simplified Field Wiring Diagram - NM180 Thru 240 Evaporator

York NM120-240
128 pages
Print Icon
To Next Page IconTo Next Page
To Next Page IconTo Next Page
To Previous Page IconTo Previous Page
To Previous Page IconTo Previous Page
Loading...
505428-YTG-V-0417
124 Johnson Controls Unitary Products
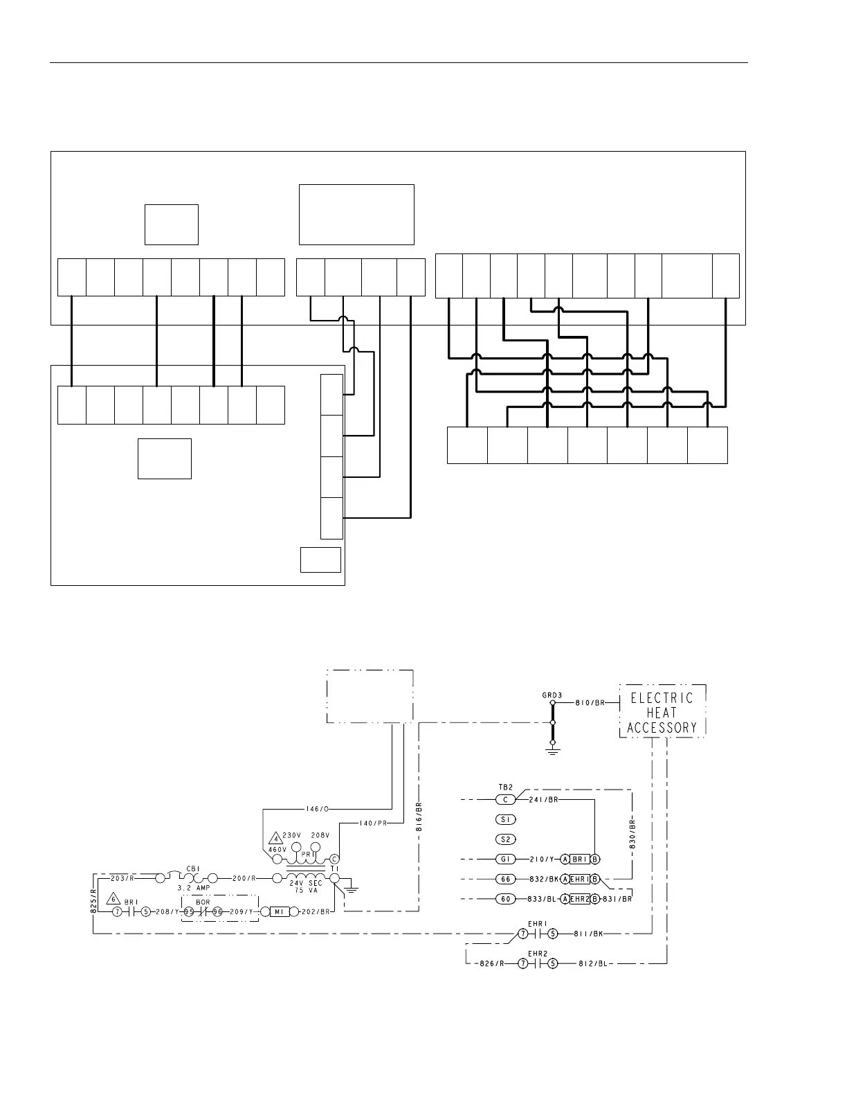
Typical Simplified Field Wiring Diagram – NM180 thru 240 Evaporator with PD180 thru 240 Heat Pump Condenser
Typical Simplified Field Wiring Diagram – NM180 thru 240 Evaporator
C S1 S2 G1 G2 66 60 X
C S1 S2 G1 G2 66 60 X
TB2
TB2
CONDENSER CONTROL BOX
EVAPORATOR CONTROL BOX
THERMOSTAT
TWO STAGE COOL/FAN
TWO STAGE HEAT
Note: Do Not Use a heat Pump
Thermostat
UCB
VFD COMM
TB5
VFD
VLT
VFD C
1
2
3
4
W1 W2 Y1 G Y2 0CC CX R SD-24
SE CONTROL BOARD
THERMOSTAT CONNECTIONS
R C Y1 Y2 G W1 W2
TB
3-1
UNIT
POWER
SUPPLY

Table of Contents

Related product manuals