EasyManua.ls Logo

ZANTIA ITACA - Protection du Sol; Distances Minimales Pour Le Positionnement de la Prise Dair; Raccordement Au Réseau Hydrique

Default Icon
Print Icon
To Next Page IconTo Next Page
To Next Page IconTo Next Page
To Previous Page IconTo Previous Page
To Previous Page IconTo Previous Page
Loading...
56
Mod. ITACA-TROIA rev 01
Installation
Traduction des instructions originales
IT IT
FR
FR
ES ES
EN EN
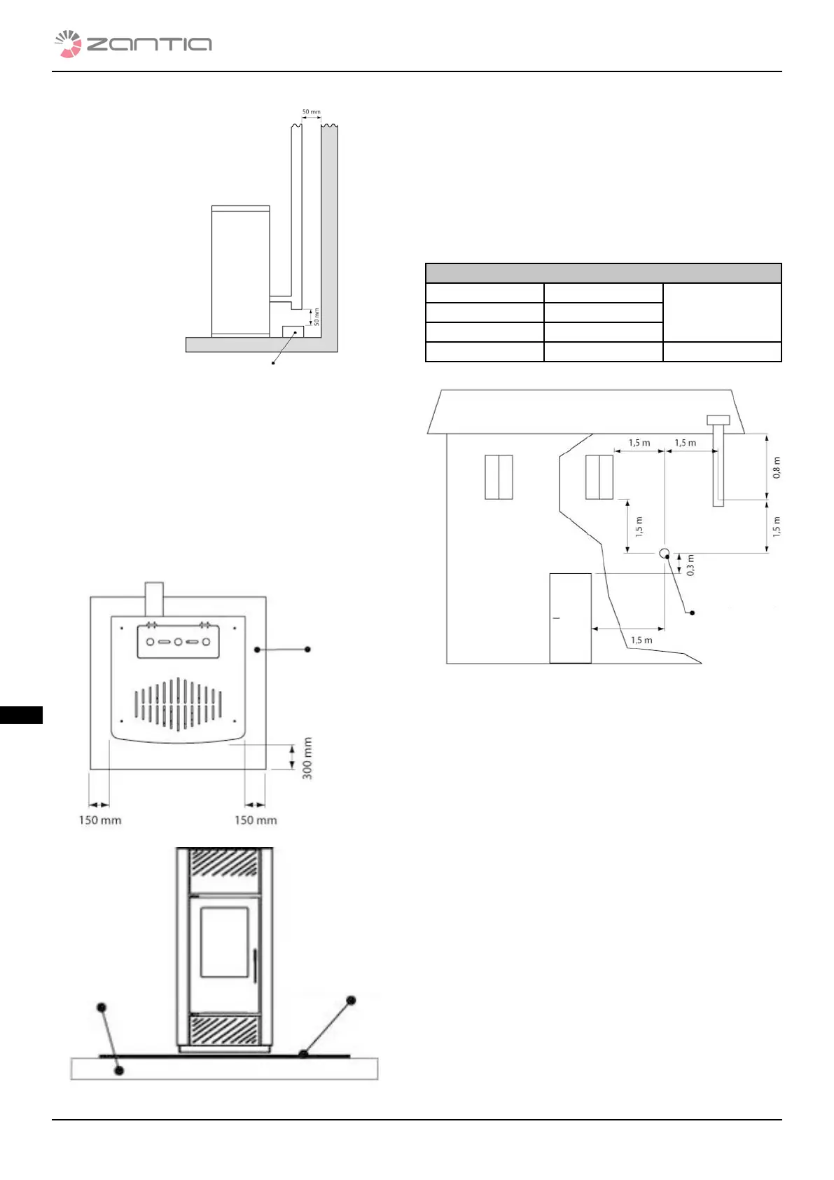
Distance de l'installation d'évacuation des fumées des
parties inammables
g. 6 distances minimums de sécurité pour le positionnement
du produit
2.5.3 PROTECTION DU SOL
En présence d'un sol sensible à la chaleur ou inammable, il
faut utiliser une protection pour le sol (par ex : plaque de tôle
d'acier, marbre ou carreaux). Quelque que soit le type de pro-
tection choisie, elle doit dépasser d'au moins 300 mm de la
partie antérieure, d'au-moins de 150 mm des parties latérales
du produit, résister au poids de celui-ci et avoir une épaisseur
d'au moins 2 mm (voir la g. suivante).
g. 7 protections du sol
Objet inammable
Protection
Protection
min. 2 mm
Sol
2.5.4 DISTANCES MINIMALES POUR LE POSITIONNE
MENT DE LA PRISE D'AIR
La prise d'air comburant de la chaudière à pellet ne peut pas
être raccordée à une installation de distribution d'air ou direc-
tement à la prise d'air prédisposée sur la paroi. Pour un posi-
tionnement correct et sûr de la prise d'air, il faut respecter les
mesures et les prescriptions décrites. Ce sont des distances à
respecter pour éviter que l'air comburant puisse être soustrait
par une autre source ; par exemple, l'ouverture d'une fenêtre
peut aspirer l'air extérieur en l'enlevant à la chaudière.
la prise d'air doit être située au moins à :
1.5 m en-dessous
Portes, fenêtres, éva-
cuation des fumées,
interstices, etc.
1.5 m Loin horizontalement
0,3 m Au-dessus
1.5 m Loin de Sorties fumées
tab.2 distances min. du positionnement des prises d'air
2.5.5 RACCORDEMENT AU RÉSEAU HYDRIQUE
Il est fortement conseillé de monter une vanne
anti-condensation sur le retour
La chaudière à pellet est équipée d'un circuit hydraulique de
chauage comprenant un circulateur, une soupape de sécu-
rité, une sonde de température et un pressostat. Le circuit de
chauage peut être raccordé directement à l'installation sans
ajouter d'autres composants. Le raccordement de la chaudière
au réseau hydrique doit être eectué en vériant que les rac-
cords fournis soient compatibles avec ceux du réseau; dans
le cas contraire, eectuer le raccordement correctement et en
utilisant des raccords appropriés, comme indiqué sur la g. 8.
Prise d'air avec
grille non refer-
mable

Table of Contents