EasyManua.ls Logo

ZANTIA ITACA - Conduit Dévacuation des Fumées; Tuyaux Et Longueurs Maximales Utilisables

Default Icon
Print Icon
To Next Page IconTo Next Page
To Next Page IconTo Next Page
To Previous Page IconTo Previous Page
To Previous Page IconTo Previous Page
Loading...
57
Mod. ITACA-TROIA rev 01
Installation
Traduction des instructions originales
IT IT
FR
FR
ES ES
EN EN
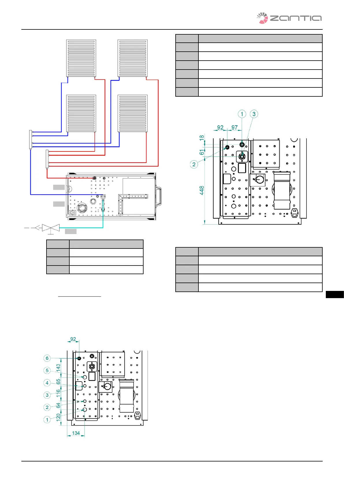
Réf. Description
1 Refoulement radiateurs
2 Retour radiateurs
3 Réseau hydrique
g. 8 schéma de raccordement au réseau hydrique
Le raccordement au réseau hydrique doit être eectué
par un personnel qualié an de ne pas provoquer de
dysfonctionnements ou de pannes de la chaudière.
Pour assurer une circulation correcte de l'eau, il est conseillé de
réduire les diamètres des tuyaux de refoulement et de retour.
Raccordement avec le kit sanitaire:
g. 9 points de raccordement avec le kit sanitaire
1
2
3
Réf. Description
1
Refoulement H2O radiateurs ¾”
2
Sortie sanitaires chaude ½”
3
Entrée H2O froide de la ligne hydrique ½”
4
Robinet de remplissage
5
Retour H2O chaude ECS radiateurs ¾”
6
Tuyau d'évacuation soupape de sécurité ½”
Raccordement sans kit sanitaire:
g. 10 points de raccordement sans kit sanitaire
Réf. Description
1
Refoulement H2O radiateurs ¾”
2
Tuyau d'évacuation H2O soupape de sécurité ½”
3
Retour H2O radiateurs ¾”
4
Entrée H2O ligne hydrique ½”
2.5.6 CONDUIT D'ÉVACUATION DES FUMÉES
La construction du conduit d'évacuation doit être
faite par un personnel ou des entreprises spéciali-
sées et habilitées, conformément à ce qui est re-
porté dans ce manuel. Réaliser toujours l'installa-
tion d'évacuation an que le nettoyage périodique
soit garanti sans devoir démonter aucune partie.
Les tuyaux doivent TOUJOURS être installés selon les normes et
les instructions du fabricant, et de toute façon avec le joint silicone
fourni an de garantir leur étanchéité.
IL EST interdit d'installer des volets ou des vannes, pou-
vant boucher le passage des fumées d'évacuation.
IL EST interdit d'installer d'autres appareils (chaudières, hottes,
etc.) dans un conduit de fumée où sont évacuées les fumées ou
les vapeurs.
2.5.7 TUYAUX ET LONGUEURS MAXIMALES UTILISABLES
Il est possible d'utiliser des tuyaux en acier aluminate peint
(épaisseur minimum 1,5 mm), en acier inox (Aisi 316) d'un dia-
mètre de 100 mm (pour les tuyaux à l'intérieur du conduit de
fumée 150 mm maximum). Les tuyaux exibles ne sont pas
autorisés; les colliers de raccordement mâle-femelle doivent

Table of Contents