EasyManua.ls Logo

Zepro Z3N - Page 47

Zepro Z3N
50 pages
Print Icon
To Next Page IconTo Next Page
To Next Page IconTo Next Page
To Previous Page IconTo Previous Page
To Previous Page IconTo Previous Page
Loading...
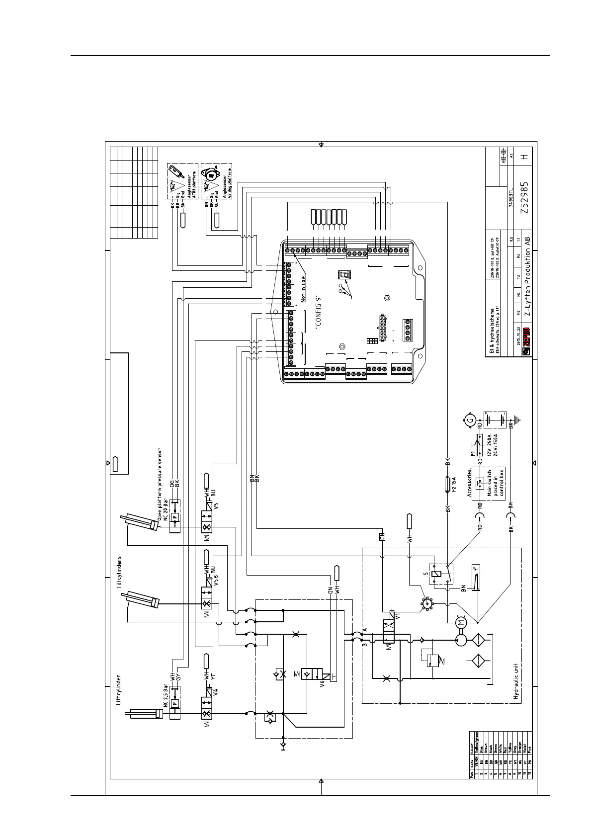
Control cards
47www.zepro.com
1
1
2
2
3
3
4
4
5
5
6
6
A
B
C
D
Denna ritning är Z-Lyftens egendom och skyddad enligt internationellt gällande lag för copyright
och får ej utan Z-Lyftens skriftliga medgivande kopieras, delges eller obehörigen användas.
This drawing is property of Z-Lyften Produktion AB and is loaned subject to return upon demand. It is not
to be reproduced or used directly or indirectly in any way detrimental to the interest of Z-Lyften Produktion AB.
Där annat ej anges / Drawing
interpretation unless otherwise specified.
All measures intends finished product
Alla mått avser färdig produkt.
Benämning/Title
Material
Dimension
Datum / Date
Vikt/Weigh(kg)
Skala/Scale
Konstr./Designer Kontr./Checked by
Godk./Approved by
Artikelnr./Stock nr.
Ritningsnr./Drawing nr.
Blad/Sheet
Format/Size
Revision
För denna ritning gäller
IS0 toleranser SMS ritregler
Toleranser/
Tolerance:
Ytjämnhet/
Surface finish:
Svets/Welding:
1 /1
Ritad/Drawn
A HIAB brand - part of Cargotec Corporation
Samm./Used on:
Rev./
Rev.Tag
Datum/
Date
Ändring/
Rev. number
Införd av/
Revised by
Kontrol./
Checked
Godk./
Approved
A 2015-12-21 7206 ME - MJ
B 2016-02-26 7231 MB - PS
C 2017-08-08 7435 ME 735 PS
D 2018-10-17 7591 SSB - MB
E 2019-10-29 7773 ME - MJ
GND
Indikerar jordanslutningar, koppla dessa till någon av
styrkortets jordpunkter / Indicates ground connection,
connect these to ground connection on controlcard.
Ctrl 4
Spiral
Ctrl 3
Radio
Ctrl 2
Ctrl 1
Control Power
Sensor Power
Ground
IN OUT
Ai 1
Ai 2
Di 1
Di 2
Di 3
Di 4
Di 5
Di 6
PA-
PA+
CSPWR
CS
+
B
E
C
2H1
B
E
C
2H2
B
E
C
Lock
B
E
C
Lock
U7
U6
U5
U4
U3
U5
U4
U2
U1
U0
Ctrl 6
Out
In
GND/Spk-
LLED/Spk+
Ctrl 5
Indication
Se appendix in
installation manual
Outputs
Sensors
GND
GND
GND
GND
BKBNBKYEBUBUGN
GND
GND
GND
BK
BNBK
WH
OG
BK
BU
GND
GND
GND
GND
GND
GND
GND
WH
WH
WH
WH
BN
BU
GY
F 2022-03-18 8079 ME 4514 MK
G 2022-11-17 8130 ME 3444 MK
H 2023-01-18 8151 KP 4810 ME
2.2.13 Z3N(U), Z3NN(U), Z3NW(U) 75-100 electrical autotilt (ZePRO1)

Related product manuals