EasyManua.ls Logo

Aritech 2X Series - Cabinet installation

Aritech 2X Series
140 pages
Print Icon
To Next Page IconTo Next Page
To Next Page IconTo Next Page
To Previous Page IconTo Previous Page
To Previous Page IconTo Previous Page
Loading...
Chapter 2: Installation
2X Series Installation Manual 19
Cabinet installation
Where to install the control panel
Install the control panel in a location that is free from construction dust and
debris, and immune to extreme temperature ranges and humidity. See Chapter 5
Technical specificationson page 109 for more information on the operating
temperature and relative humidity specifications.
Provide enough floor and wall space to allow the control panel to be installed and
serviced without any obstructions.
The cabinet should be mounted so that the user interface is at eye level.
Note: This product has been certified to EN 54-2 using the standard wall
mounting installation method described below. If other mounting options are
used, take care to install the panel in an area that is not subject to excessive
vibration or shock.
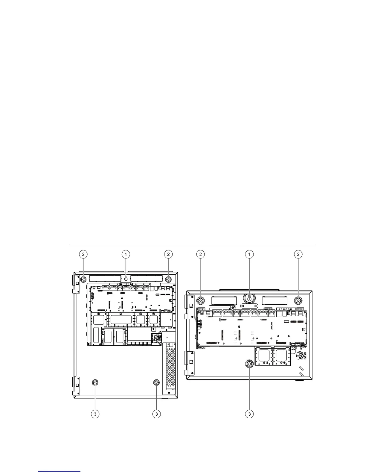
Fixing the cabinet to the wall
Fix the cabinet to the wall using five M4 × 30 screws and five Ø 6 mm wall plugs,
as shown in Figure 7 below.
Figure 7: Mounting hole locations

Table of Contents

Other manuals for Aritech 2X Series

Related product manuals