EasyManua.ls Logo

Atlas Copco GA 7 VSD+

Atlas Copco GA 7 VSD+
138 pages
To Next Page IconTo Next Page
To Next Page IconTo Next Page
To Previous Page IconTo Previous Page
To Previous Page IconTo Previous Page
Loading...
Most compressors are designed for use in TT/TN networks and are intended for
industrial environments where the electrical supply is separated from the residential/
commercial supply network.
To use the machine in light industrial, commercial or residential environments with a
shared supply network or in an IT network, extra measures can be required: contact
Atlas Copco.
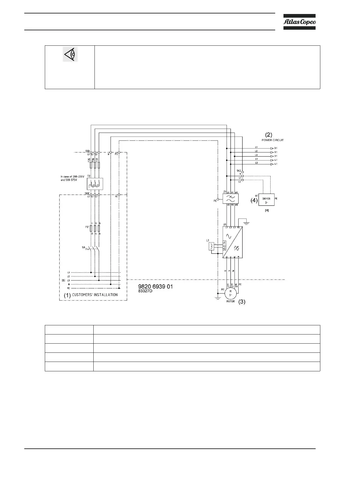
Electrical connections for GA 7 VSD+ up to GA 15 VSD+
Electrical connections diagram, typical example
Reference Designation
(1) Customer’s installation
(2) Power circuit
(3) Motor
(4) Dryer
Note
The complete electrical diagram can be found in the electrical cubicle.
Instruction book
2920 7109 23 79

Table of Contents

Related product manuals