Home
Atlas Copco
Air Compressor
PTS 800 T3 Cud
Page 24
Atlas Copco PTS 800 T3 Cud - Page 24
134 pages
Manual
To Next Page
To Next Page
To Previous Page
To Previous Page
Loading...
- 24 -
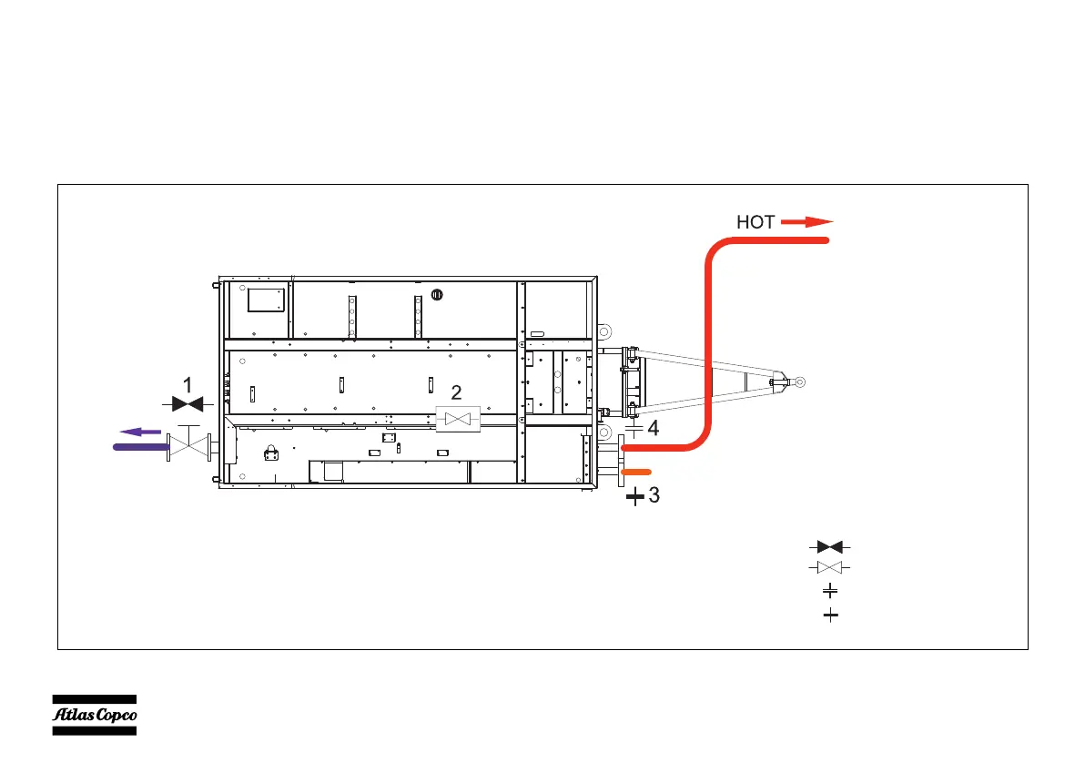
To obtain hot air, without cold air:
–
close air outlet valve (1),
–
open hot air outlet fla
nge (4),
–
keep hot air inlet fla
nge closed (3),
–
open hot air outlet valve
(2).
Open flange
Close flange
Close valve
Open valve
23
25
Table of Contents
Main Page
Table of Contents
5
Safety Precautions for Portable Compressors
8
About this Manual
15
Description of Safety Pictograms
15
Abbreviations
15
Definitions
15
Directions
15
Main Parts
16
General Description
16
Markings
18
Mechanical Features
20
Engine
20
Compressor
20
Compressor Elements
20
Cooling and Lubrication
20
Speed Regulation and Unloading System
20
Safety Devices
20
Frame and Axles
20
Bodywork
21
Fuel Tank
21
Inlet Shutdown Valve
21
Automatic Oil Filler
21
Automatic Fire Suppression
21
Data Plate
21
System
21
Cold Start (Option)
22
Hot Air Outlet
23
Electrical Features
27
Pc4003™ Controller
27
Battery Switch
27
Battery Charger
27
Sockets EU
27
Sockets USA
28
Fuse Box
28
Heater Box
29
External Emergency Stop
29
Operation Flows
31
Air Flow System
31
Cooling and Lubricating Oil System
33
Fuel System
35
Coolant System
37
Installation
38
Transporting and Lifting
38
Transporting
38
Lifting
38
Parking
39
Operating Instructions
40
Checks before Starting
40
Operating and Setting the Pc4003™ Controller
41
Pc4003™ Button Overview
41
Pc4003™ Display Icons
42
Possible Views
45
Operations Overview
46
Starting
46
Stopping
50
Shutdown
52
Power off
52
Settings
53
Set Pressure Setpoint
53
Acknowledge an Alarm
53
Set Clock
53
Set Language
54
Set Units
54
Change Display Settings
54
Go to Diagnostics
54
Set the Autoload Function
54
Operating the Automatic Fire Suppression System
56
Maintenance
58
Maintenance Schedule
58
Use of Preventive Maintenance Schedule
61
Service Packs and Kits
61
Engine Maintenance Procedures
62
Engine Oil Level Check
62
Engine Oil and Oil Filter Change
62
Compressor Maintenance Procedures
62
Compressor Oil Level Check
62
Compressor Oil and Oil Filter Change
63
Compressor Element Overhaul
63
Coolant Level Check
64
Replacing the Coolant
64
Adjustment and Servicing Procedures
64
Coolant
64
Main Parts
65
Cleaning the Dust Trap
65
Replacing the Air Filter
65
Air Filter
65
Element and the Safety Cartridge
65
Cleaning the Filter Element
66
Draining Fuel Filters
66
Fuel System
66
Priming the System
67
Cleaning Fuel Tank
67
Cleaning Coolers
67
Poly V-Belt Tension Adjustment
68
LP and HP Safety Valve Adjustment
69
Electrolyte
70
Activating a Dry-Charged
70
Recharging a Battery
70
Maintaining the Battery
70
Battery Care
70
Battery
70
Voltage
70
Servicing Water Separator
71
Engine Consumable Specifications
72
Engine Fuel Specifications
72
Engine Oil Specifications
72
Engine Coolant Specifications
73
Checks and Trouble
74
Shooting
74
Problem Solving Chart
74
Battery and Alternator Precautions
74
Trouble Shooting
75
Compressor Control Module Trouble Shooting
81
Process Information
81
Fault Codes
81
Shutdown Sensors
84
Storage of the Compressor
84
Storage Instructions
84
Disposal
85
General
85
Disposal of Materials
85
Technical Specifications
86
Torque Values
86
Settings of Shutdowns and Safety Valves
86
Compressor/Engine Specifications
87
Dimension Drawing
90
Conversion List of si Units into
91
British Units
91
Data Plate
91
Related product manuals
PTS 1600 Cud S3A/T3 APP
128 pages
Atlas Copco PTS 916 Cd
74 pages
Atlas Copco XATS 800 CD7
88 pages
Atlas Copco U190 PACE KD WUX
92 pages
Atlas Copco XAHS 186 Cud PNE
70 pages
PNS 1250 Cud S3A/T3 APP
114 pages
XATS 138 PE Stage V APP
86 pages
XATS 250 PE Stage V APP
86 pages
XAHS 108 PE Stage V APP
86 pages
Atlas Copco GA 75 VSD
114 pages
Atlas Copco ZT Series
66 pages
Atlas Copco Air Compressor
70 pages