EasyManua.ls Logo

Atlas Copco PTS 800 T3 Cud

Atlas Copco PTS 800 T3 Cud
134 pages
To Next Page IconTo Next Page
To Next Page IconTo Next Page
To Previous Page IconTo Previous Page
To Previous Page IconTo Previous Page
Loading...
- 90 -
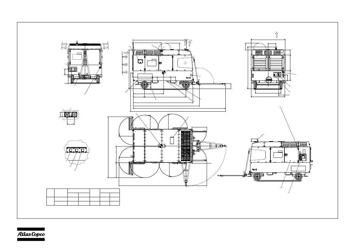
10.4 Dimension drawing
838
903
900
838
903
854
854
MAX 3694
5320
90.0° MAX
5597
CONTROL PANEL
COOLING AIR INLET
LOCKING DEVICE
FOR TURNING TABLE
EMERGENCY STOP
2512685
COOLING AIR INLET
COOLING AIR INLET
2061
341
2030
1560
A
A ( 1 : 5 )
305951600
COMPRESSED AIR OUTLET
G2
FIRE EXTINGUISHER
CONTROLLER DISPLAY
AND EMERGENCY STOP
EMERGENCY STOP
900
386
ENGINE EXHAUST
COOLING AIR OUTLET
FUEL TANK DRAIN
263
GROUND CLEARANCE
DATA PLATE
FUEL FILLING AND DEF FILLING INSIDE
RAIN CAP
(EXHAUST)
Y
X
OPENING FOR
HOT AIR OUTLET
1699
LIFTING EYE
Ø55
2339
100°
293
3612
DRAIN FRAME
(3x)
3240
1173.5
MAX 2521
171
485
COOLANT DRAIN G3/4
ENGINE DRAIN G3/4
ELEMENT DRAIN G3/4
FLASHER LIGHT
288 813 288
4009
C
C
Ø70(2x)
216
130(2x)
DOOR
LIFTING EYE
COOLANT FILLING DOOR
FOR EU VERSION
-SOCKET BATTERY CHARGER 230V OR
SOCKET HEATER (OPTIONAL)
-24V DC OUTLET SOCKET
-REMOTE E-STOP CONNECTION
FOR US VERSION
-SOCKET BATTERY CHAGER 110V
-SOCKET HEATER (OPTIONAL)
-24V DC OUTLET SOCKET
-REMOTE E-STOP CONNECTION
(SEE DETAILS ON PAGE2)
EXTERNAL FUEL SUPPLY
EXTERNAL DEF SUPPLY
5760 MAX
FORK LIFT SLOT
Ø13.5(8x)
341.5
176
414
414
UNIT
WET W/O FUEL
WET WITH FUEL
X
Y
PTS 800
CENTER OF GRAVITY
MASS (KG)
REAR
984
FRONT
AXLE LOAD (KG)
4960
1945
3015
1037
1668
1691
4600
1845
2755

Table of Contents

Related product manuals