EasyManua.ls Logo

Atlas Copco PTS 800 T3 Cud - Page 34

Atlas Copco PTS 800 T3 Cud
134 pages
To Next Page IconTo Next Page
To Next Page IconTo Next Page
To Previous Page IconTo Previous Page
To Previous Page IconTo Previous Page
Loading...
- 34 -
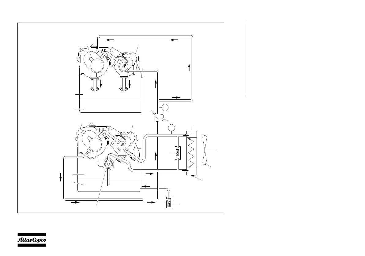
Overview
BV
OC
Bypass valve (oil cooler)
BV
OF
Bypass valve (oil filter)
BV
OS
Bypass valve (oil sump)
CE
LP
LP compressor element
CE
HP
HP compressor element
F Cooling fan (RAD, IC, AC, OC, CAC)
GC Gear casing
OC Oil cooler
OF
C
Compressor oil filter (with bypass valve)
OP Oil pump
OS Oil sump
PS Pressure sensor
TS Temperature sensor
OC
TS
DP
OC
F
BV
OS
GC
CE
LP
CE
HP
OS
CE
LP
CE
HP
GC
OS
OP
OF
C
BV
OF
BV
OC
PS
LUBRICATING CIRCUIT
COOLING
CIRCUIT

Table of Contents

Related product manuals