EasyManua.ls Logo

B&R PP21 - 6.5 Dimensions; 7. Power Panel Expansion EX101 Module; 7.1 General Information; 7.2 Order Data

B&R PP21
56 pages
Print Icon
To Next Page IconTo Next Page
To Next Page IconTo Next Page
To Previous Page IconTo Previous Page
To Previous Page IconTo Previous Page
Loading...
Power Panel User's Manual 25
Chapter 1
Power Panel
Power Panel • Power Panel Expansion EX101 Module
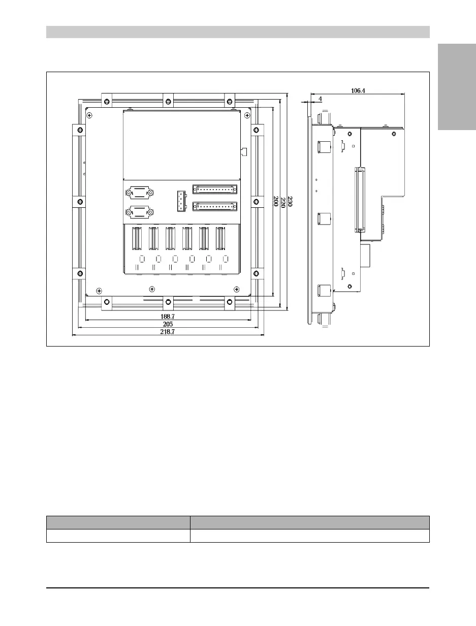
6.5 Dimensions
7. Power Panel Expansion EX101 Module
7.1 General Information
The expansion module EX101 can be installed on the Power Panel PP41. B&R SYSTEMS 2005
interface module inserts can be operated in the EX101 insert slot.
A description for interface module inserts can be found in the "B&R SYSTEM 2005 User's
Manual" (model no.: MASYS22005-E).
7.2 Order Data
Figure 7: PP41 dimensions
Model Number Short Description
4EX101.00 Power Panel expansion for PP41, 1 insert slot for interface module inserts
Table 7: Order data for EX101

Table of Contents

Related product manuals