EasyManua.ls Logo

B&R PP21 - 7.6 Dimensions

B&R PP21
56 pages
Print Icon
To Next Page IconTo Next Page
To Next Page IconTo Next Page
To Previous Page IconTo Previous Page
To Previous Page IconTo Previous Page
Loading...
28 Power Panel User's Manual
Power Panel • Power Panel Expansion EX101 Module
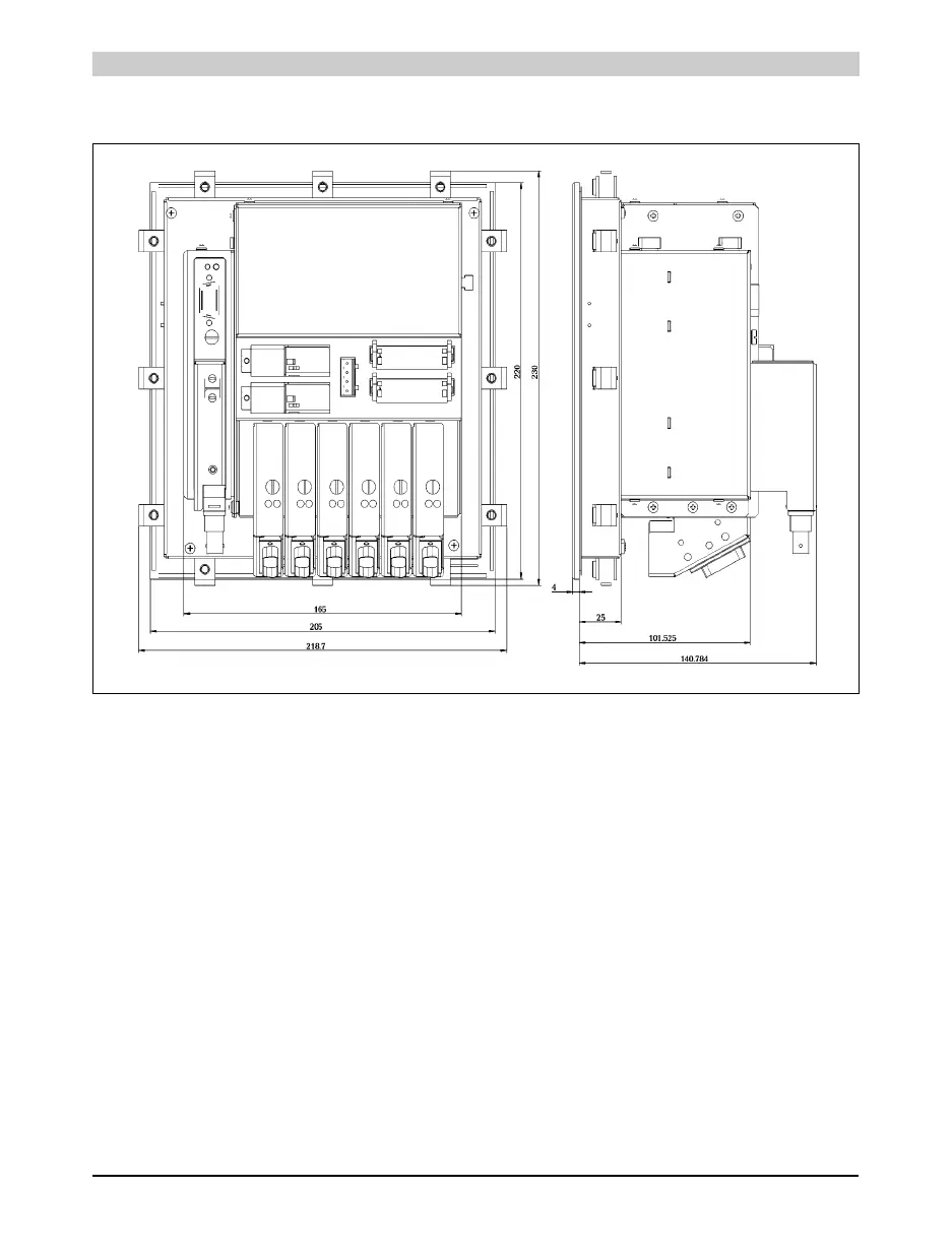
7.6 Dimensions
Figure 10: EX101 dimensions

Table of Contents

Related product manuals