EasyManua.ls Logo

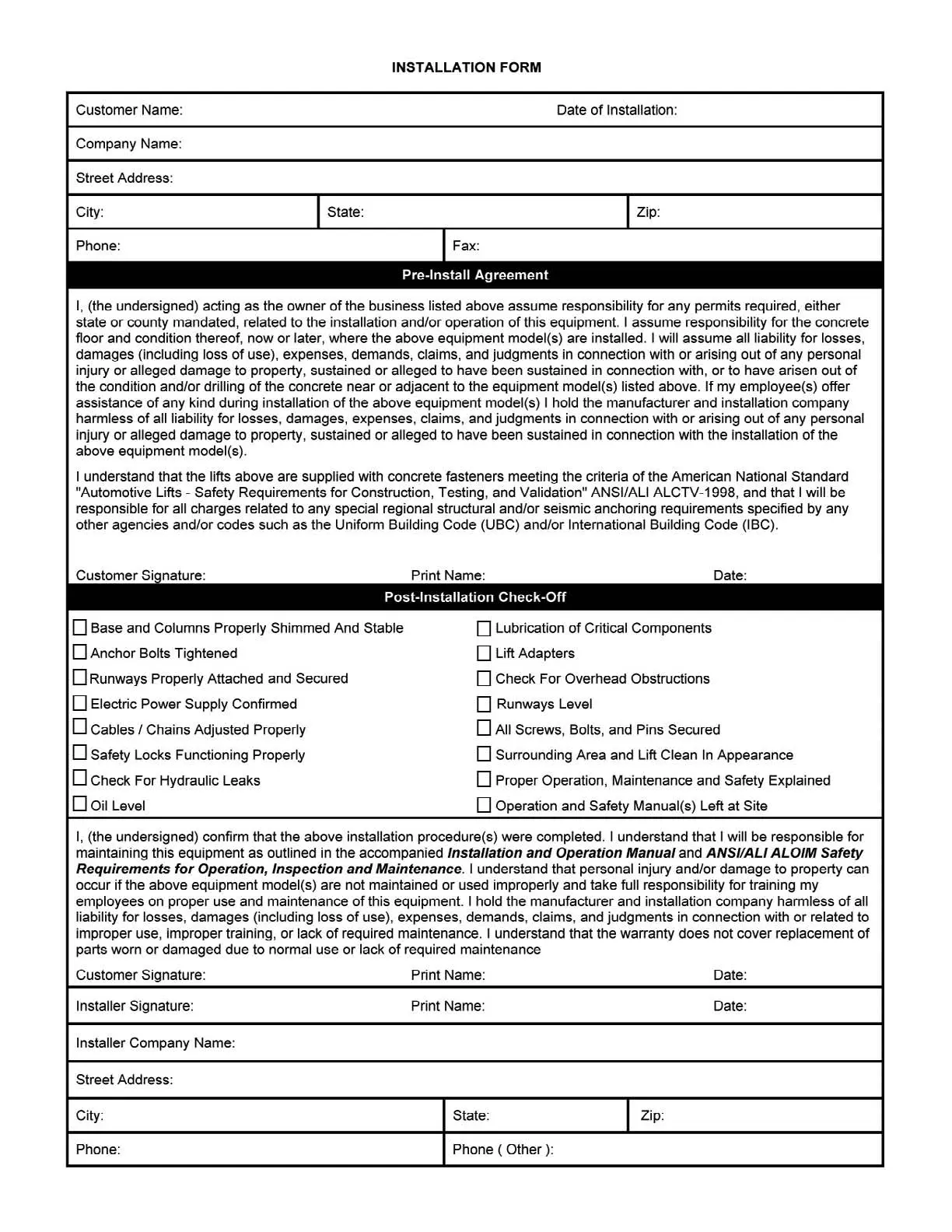
BendPak LR-60P - Installation Agreement

BendPak LR-60P
32 pages
Print Icon
To Next Page IconTo Next Page
To Next Page IconTo Next Page
To Previous Page IconTo Previous Page
To Previous Page IconTo Previous Page
Loading...
31

Related product manuals