EasyManua.ls Logo

Bosch WT Series - Dimensional Drawings WT; WT Model Dimensions and Connections

Bosch WT Series
48 pages
Print Icon
To Next Page IconTo Next Page
To Next Page IconTo Next Page
To Previous Page IconTo Previous Page
To Previous Page IconTo Previous Page
Loading...
40 | Dimensional Drawings WT WW & WT Models
WW & WT Models8733943362 (2016/08) Subject to change without prior notice
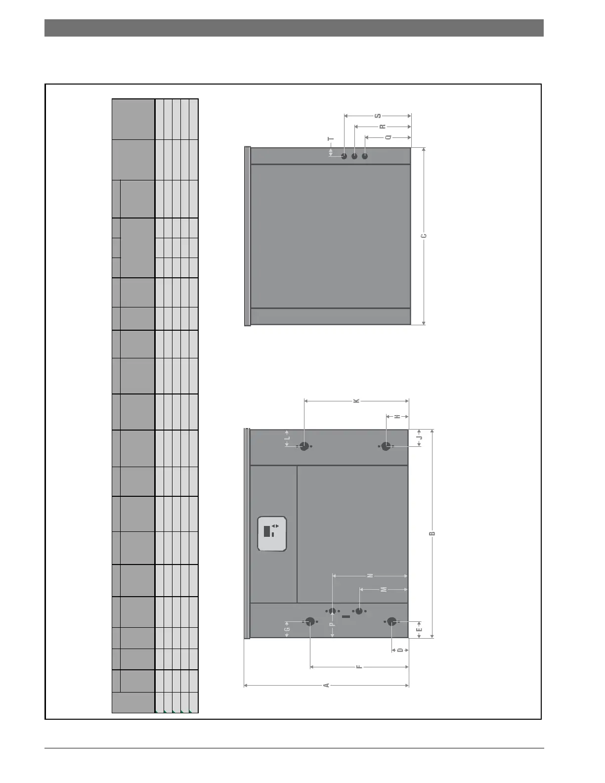
DIMENSIONAL DRAWINGS WT
ABC D E F G H J K L M N P QRS T
Height Width Depth
Load
Side
Water In
Height
Left Side
to Load
Side
Water In
Load Side
Water Out
Height
Left Side to
Load Side
Water Out
Source
Side
Water In
Height
Right Side
to Source
Side Water
Out
Source
Side Water
Out Height
Right Side
to Source
Side Water
Out
HRP
Water In
Height
HRP
Water
Out
Height
Left Side
to HRP
Water
Out
Left Side to
Electrical
Knockouts
025 24.00 32.50 24.00 2.70 2.50 13.70 2.50 3.25 1.95 14.25 1.95 7.15 11.00 4.25 6.55 8.05 9.55 1.25 3/4" FPT 1/2" FPT
035 24.00 32.50 24.00 2.30 2.30 14.30 2.50 3.70 2.55 15.70 2.55 7.15 11.00 4.25 6.55 8.05 9.55 1.25 3/4" FPT 1/2" FPT
049 24.00 32.50 24.00 2.30 2.60 14.30 2.65 3.70 2.65 15.70 2.65 7.15 11.00 4.
25 6.55 8.05 9.55 1.25 1" FPT 1/2" FPT
061 24.00 32.50 24.00 2.30 2.60 14.30 2.65 3.20 2.65 15.20 2.65 7.15 11.00 4.25 6.55 8.05 9.55 1.25 1" FPT 1/2" FPT
071 24.00 32.50 24.00 2.50 2.60 21.75 4.45 2.50 2.45 21.75 2.65 7.15 11.00 4.25 6.55 8.05 9.55 1.25 1" FPT 1/2" FPT
Model
Water
Connections
HRP
Connections
Electrical Knockout
Heights
UNI T FRONT
LEFT SIDE

Related product manuals