EasyManua.ls Logo

Burnham Revolution - Internal Boiler Wiring Ladder Diagram

Burnham Revolution
100 pages
Print Icon
To Next Page IconTo Next Page
To Next Page IconTo Next Page
To Previous Page IconTo Previous Page
To Previous Page IconTo Previous Page
Loading...
53
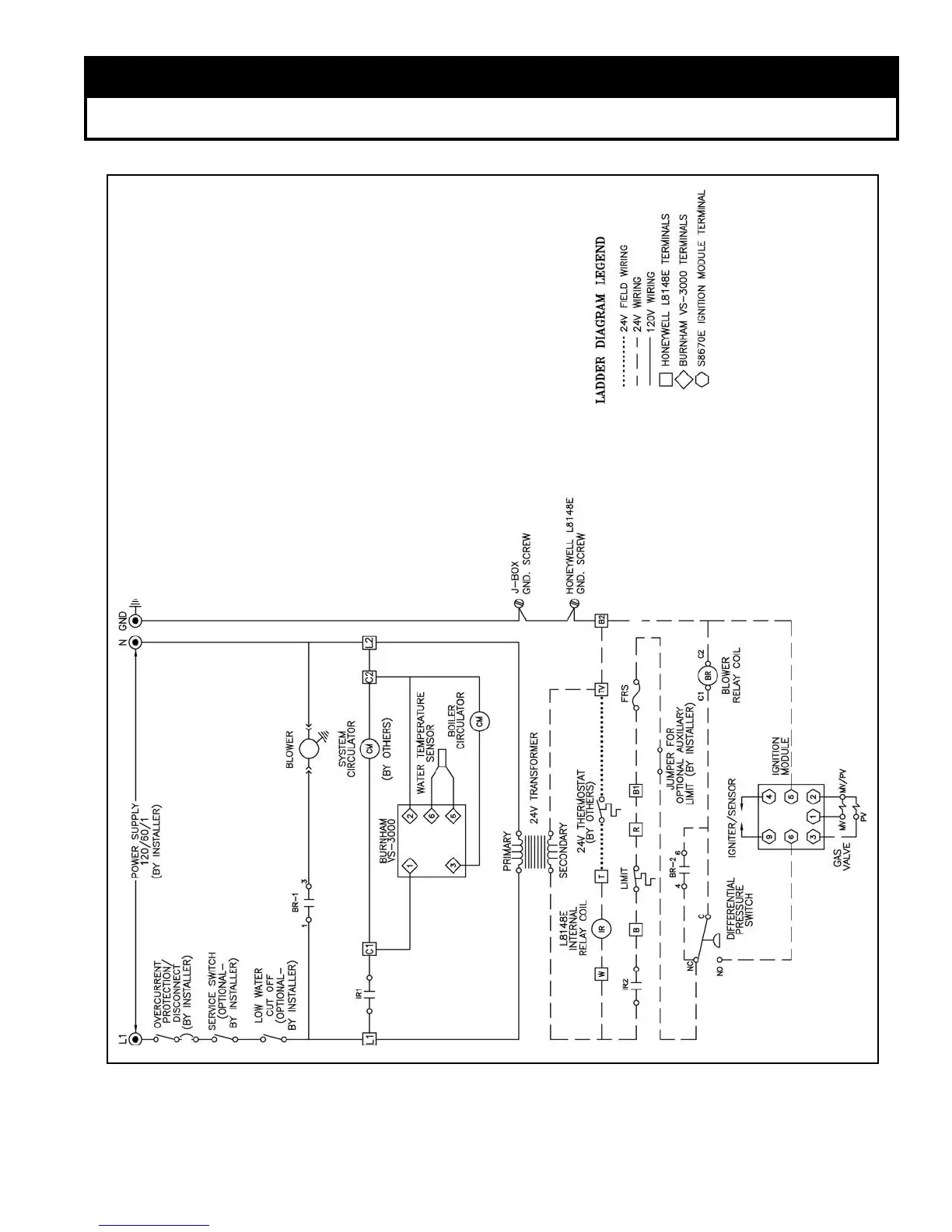
Figure 32: Internal Boiler Wiring Ladder Diagram
NOTICE
If an additional system limit is used, install in series with B1 circuit (blue wire) of the Honeywell L8148
Aquastat (located inside boiler jacket).

Table of Contents

Other manuals for Burnham Revolution

Related product manuals