EasyManua.ls Logo

Burnham Revolution - Modular Boiler Piping

Burnham Revolution
100 pages
Print Icon
To Next Page IconTo Next Page
To Next Page IconTo Next Page
To Previous Page IconTo Previous Page
To Previous Page IconTo Previous Page
Loading...
68
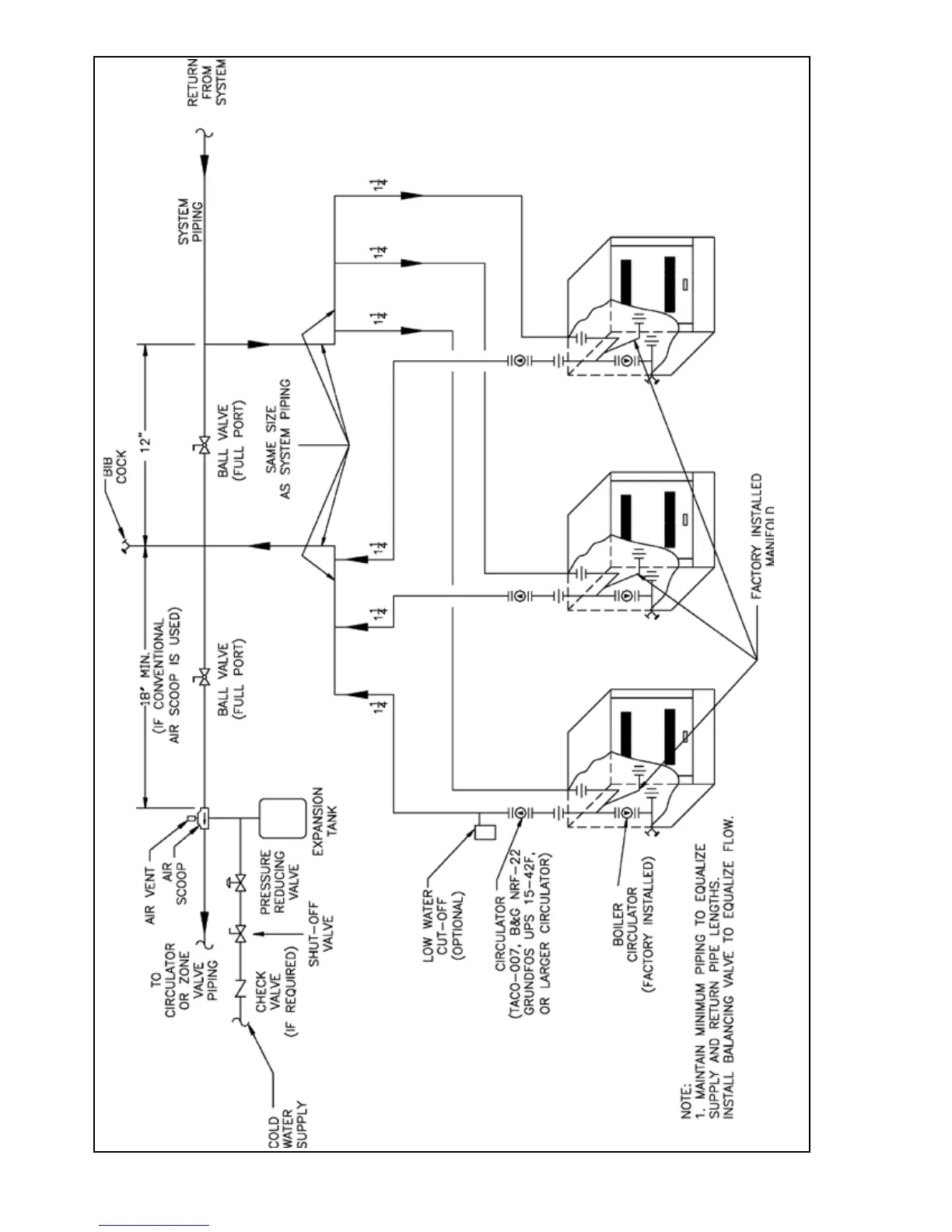
Figure 43: Modular Boiler Piping

Table of Contents