EasyManua.ls Logo

Carrier 23XRV - Control Center Components

Carrier 23XRV
80 pages
To Next Page IconTo Next Page
To Next Page IconTo Next Page
To Previous Page IconTo Previous Page
To Previous Page IconTo Previous Page
Loading...
11
13
6
5
81
91
02
1
2
2
3
14
12
11
11
9
71
4
61
8
1
5
8
7
515
1
01
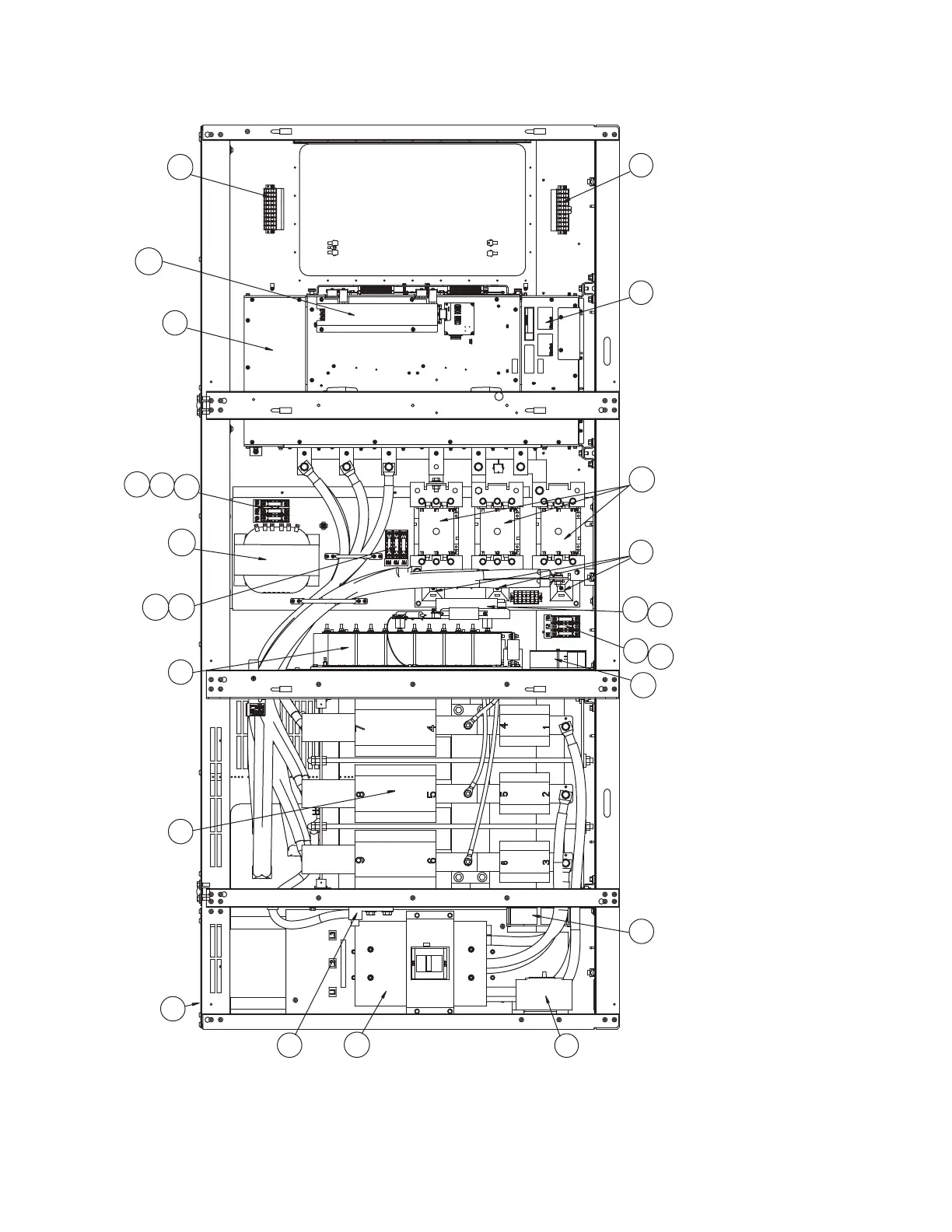
Fig. 10 — Control Center Components (LF-2 VFD)
1—Input Power Wiring Panel 12 Power Module Nameplate
2—Input Inductor Assembly 13 AC Contactor (3)
3—Capacitor Bank Assembly 14 Pre-Charge Resistor Assembly
4—Fuse, Class CC, 600V, 20A (3) 15 Line Sync PC Board Assembly
5—Fuse Black, 30A, 600V, Class CC 16 Line Sync Board Cover
6—Transformer, 3kVA 17 Fuse, Class CC, 600V, 1A (3)
7—Fuse, Class CC, 600V, 5A (1) 18 Fan, 115V (2)
8—Fuse, Class CC, 600V, 15A (2) 19 Circuit Breaker, 600V, 15A
9—Power Module Assembly 20 Circuit Breaker, 600V
10 Communications Interface Board 21 Lug, Ground, 2-600 MCM
11 Terminal Block, 10-Position (2)
a23-1651

Table of Contents

Related product manuals