EasyManua.ls Logo

Carrier 23XRV - Optional Pumpout System Piping Schematic with Storage Tank

Carrier 23XRV
80 pages
To Next Page IconTo Next Page
To Next Page IconTo Next Page
To Previous Page IconTo Previous Page
To Previous Page IconTo Previous Page
Loading...
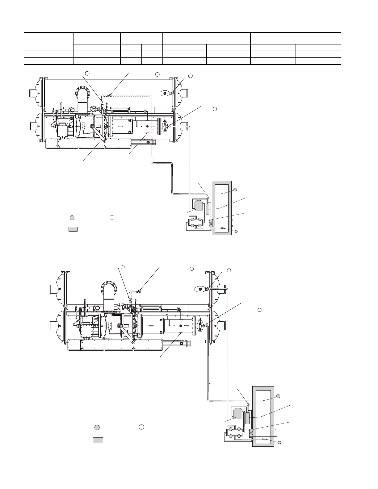
48
COOLER
CONTROL CENTER
COOLER REFRIGERANT
PUMPOUT VALVE 7
COOLER CHARGING
VALVE 1b
CONDENSER
CHARGING
VALVE 1a
DISCHARGE ISOLATION
VALVE (OPTIONAL)
STORAGE
TANK L I QUID
VALVE
OIL
SEPARATOR
PUMPOUT
CONDENSER
WATER SUPPLY
AND RETURN
PUMPOUT
CONDENSER
STORAGE TANK
VAPOR VALVE
2
3
4
5
PRESSURE
RELIEF SAFETY
VALVE
PUMPOUT
COMPRESSOR
6
SERVICE VALVE ON
PUMPOUT UNIT
=
SERVICE VALVE ON
CHILLER (FIELD
SUPPLIED)
=
=
MAINTAIN AT LEAST 2 FT (610mm) CLEARANCE AROUND
STORAGE TANK FOR SERVICE AND OPERATION WORK.
10
SHIPPING BRACE
(REMOVE PRIOR TO
STA RT-U P )
COOLER INLET
ISOLATION VALVE 11
RATED DRY WEIGHT AND REFRIGERANT CAPACITY
TANK SIZE
TANK OD DRY WEIGHT*
R-134A MAXIMUM REFRIGERANT
CAPACITY (ANSI/ASHRAE 15)
R-134A MAXIMUM REFRIGERANT
CAPACITY (UL 1963)
in. mm lb kg lb kg lb kg
0428 24.00 610 2334 1059 1860 844 1716 778
0452 27.25 692 3414 1549 3563 1616 3286 1491
Fig. 55 — Optional Pumpout System Piping Schematic with Storage Tank — Configured to Push
Liquid Into Storage Tank (Unit with R Compressor Shown)
a23-1634
LEGEND
*The above dry weight includes the pumpout
condensing unit weight of 164 lb (75 kg).
ANSI American National Standard
Institute
ASHRAE American Society of Heating,
Refrigerating, and Air-Condi-
tioning Engineers
OD Outside Diameter
UL Underwriters Laboratories
COOLER
CONTROL CENTER
COOLER REFRIGERANT
PUMPOUT VALVE
COOLER CHARGING
VALVE
USE CONDENSER
CHARGING
VALVE TO ADD
CHARGE
DISCHARGE ISOLATION
VALVE (OPTIONAL)
STORAGE
TANK LIQUID
VALVE
OIL
SEPARATOR
PUMPOUT
CONDENSER
WATER SUPPLY
AND RETURN
PUMPOUT
CONDENSER
STORAGE TANK
VAPOR VALVE
2
3
4
5
PRESSURE
RELIEF SAFETY
VALVE
PUMPOUT
COMPRESSOR
6
SERVICE VALVE ON
PUMPOUT UNIT
=
SERVICE VALVE ON
CHILLER (FIELD
SUPPLIED)
=
=
MAINTAIN AT LEAST 2 FT (610mm) CLEARANCE AROUND
STORAGE TANK FOR SERVICE AND OPERATION WORK.
10
7
COOLER INLET
ISOLATION VALVE
1a
1b
11
Fig. 56 — Optional Pumpout System Piping Schematic with Storage Tank — Configured to Pull
Vapor Out of Chiller or to Charge Chiller from Storage Tank (Unit with R Compressor Shown)
a23-1544

Table of Contents

Related product manuals