EasyManua.ls Logo

Carrier 23XRV - 23 XRV Controls Schematic

Carrier 23XRV
80 pages
To Next Page IconTo Next Page
To Next Page IconTo Next Page
To Previous Page IconTo Previous Page
To Previous Page IconTo Previous Page
Loading...
60
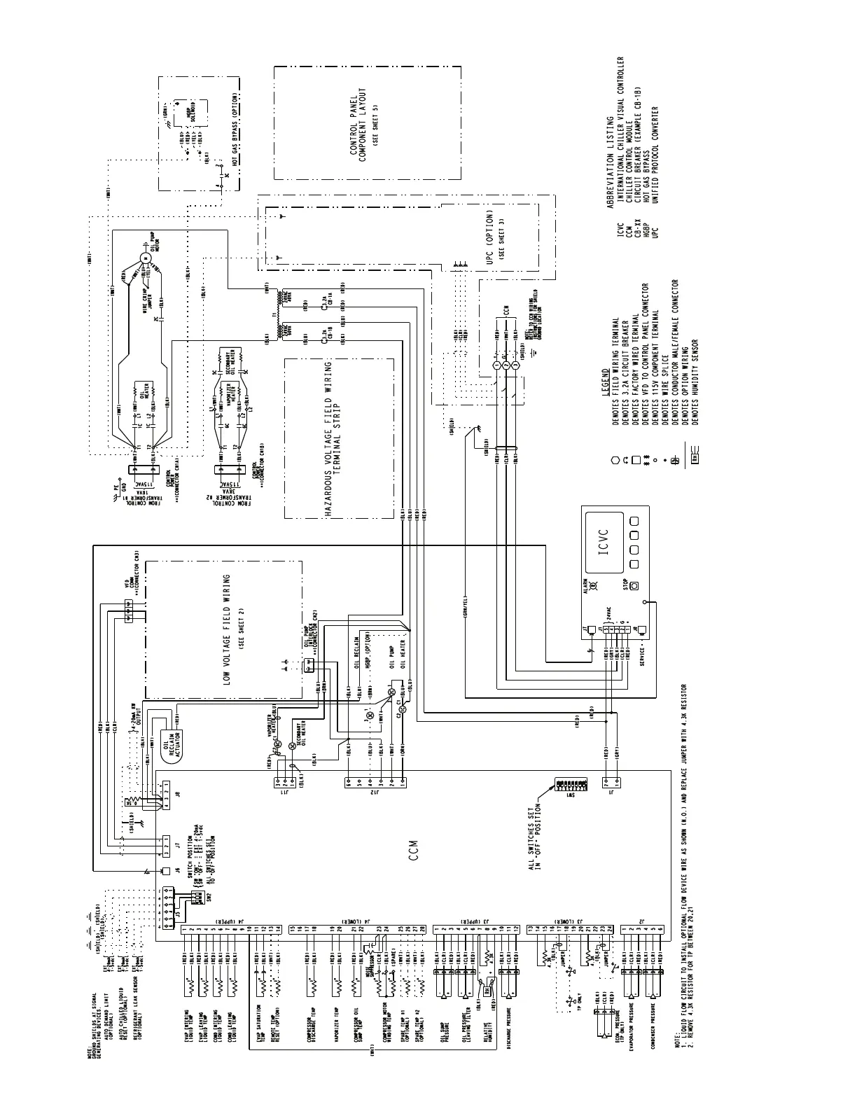
Fig. 63 — 23XRV Controls Schematic (LF-2)

Table of Contents

Related product manuals