EasyManua.ls Logo

ClimaCool UCW 30 - Dimensional Data and Drawings

ClimaCool UCW 30
72 pages
Print Icon
To Next Page IconTo Next Page
To Next Page IconTo Next Page
To Previous Page IconTo Previous Page
To Previous Page IconTo Previous Page
Loading...
®
www.climacoolcorp.com
4
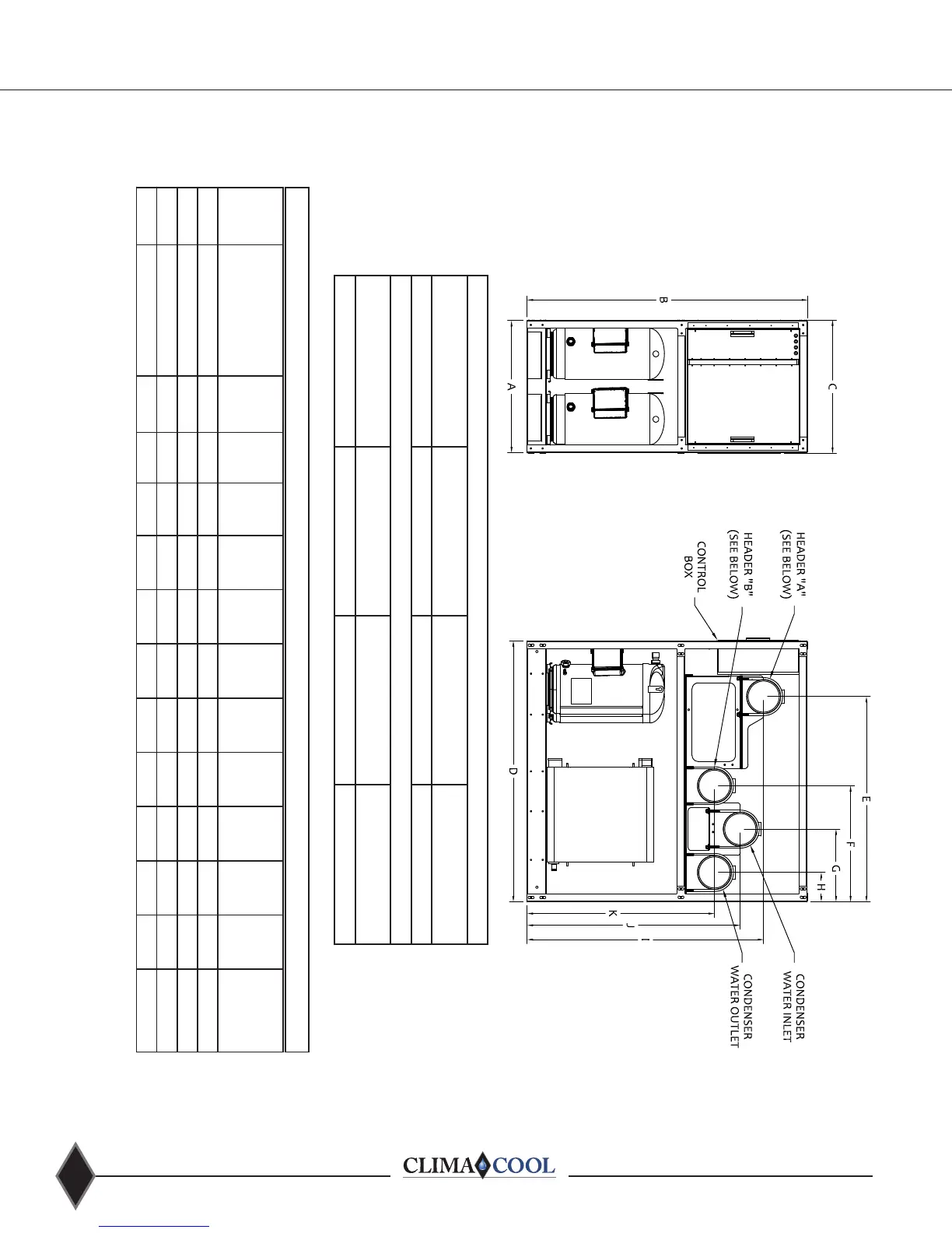
Dimensional Data and Drawings
LOAD WATER PIPING CONFIGURATION ARRANGEMENT (HEADER “A”)
UCW UCH HEAT RECOVERY
UCH HEAT PUMP
(Cooling Priority)
UCH HEAT PUMP
(Heating Priority)
CHILLED WATER OUTLET CHILLED WATER OUTLET LOAD WATER OUTLET LOAD WATER INLET
LOAD WATER PIPING CONFIGURATION ARRANGEMENT (HEADER “B”)
UCW UCH HEAT RECOVERY UCH HEAT PUMP
(Cooling Priority)
UCH HEAT PUMP
(Heating Priority)
CHILLED WATER INLET CHILLED WATER INLET LOAD WATER INLET LOAD WATER OUTLET
Model
UCW/H
Voltage
A
Unit
Width
(in.)
B
Unit
Height
(in.)
C
Header
Width
(in.)
D
Unit
Depth
(in.)
E
Header
Location
F
Header
Location
G
Header
Location
H
Header
Location
I
Header
Location
J
Header
Location
K
Header
Location
Header
Connection
(in.)
1
030 208/230/460/575/3/60 34      19  58 58  6
050 208/230/460/575/3/60 34      19  58 58  6
070 208/230/460/575/3/60 34      19  58 58  6
085 208/230/460/575/3/60 34 72  67       48 8
UNIT DIMENSIONS (IN INCHES)
Note:
