EasyManua.ls Logo

Climate Wizard CW-H10 - Technical Specifications

Climate Wizard CW-H10
36 pages
Print Icon
To Next Page IconTo Next Page
To Next Page IconTo Next Page
To Previous Page IconTo Previous Page
To Previous Page IconTo Previous Page
Loading...
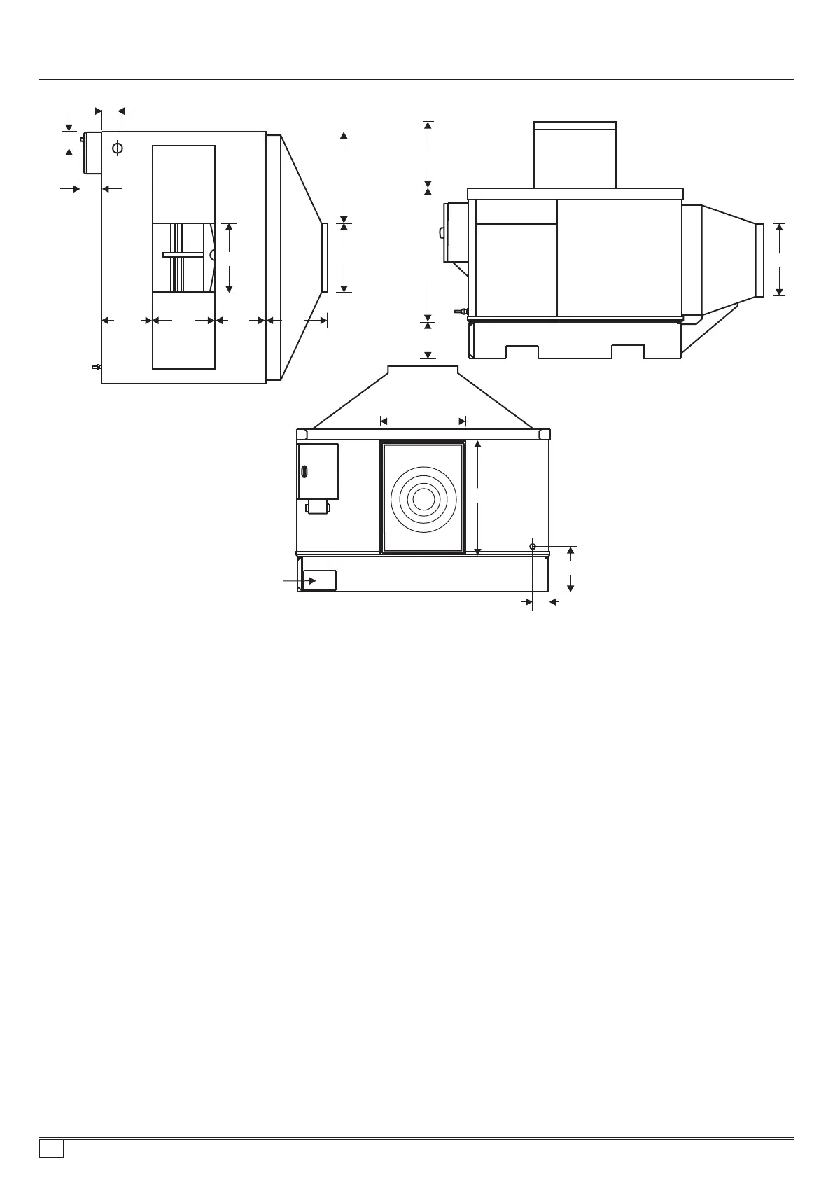
ACCESSCOVER
FORDRAINVALVE
CONNECTION
ELECTRICAL SUPPLY
TERMINATIONSMADE
INSIDECONTROL BOX
WATERCONNECTION
1/2”(15mm)BSP NIPPLE
(Waterconnectionmay
requireanadaptorto
suitlocalpipesizes)
806
610
250
*910
452
500
COOLERSPECIFICATIONS
3
SeeleyInternationalPtyLtd
SPECIFICATIONS CW-H10 CW-H15
General
Electricalsupply 3-phase,380-480,50/60Hz,10amps 3-phase,380-480,50/60Hz,10amps
Watersupply 1/2”BSP maleconnection, 1/2”BSP maleconnection,
min100kPa,max800kPa,20L/min min100kPa,max800kPa,20L/min
Max.operatingtemperature 55 Cambient(shade) 55 Cambient(shade)
Airflow 800L/sec-at0-200Pa 1100L/sec-at0-200Pa
Soundpressure 73.5dB(A)at1moncenterline 79dB(A)at1moncenterline
fromdischarge fromdischarge(tobeconfirmed)
500diax285w 560diax285w
InputPower1800W(Nominal)
verticalcentrifugal pumps,20L/min@1mhead 3pumps,20L/min@1mhead
230V,50or60Hz InputPower20Wea InputPower20Wea
2chlorinators
electricdrive 1½”(40mm)BSP male 1½”(40mm)BSP male
2cores 3cores
45L 65L
0 0
Fan
Motor
Pump
Chlorinator
Drainvalve
Heatexchangercore
Waterreservoir(full)
Shipping-dimensions
Shipping-weight
OperatingWeight
Integralwithmotor,
backwardcurvedaluminiumimpellor
IP 54die-castaluminiumhousing. InputPower1400W(Nominal)
ECMwithPWMcontrol
SI‘Tornado’,2-polesynchronous, 2
SIlowvoltage,CatalyticChlorinegenerator 2chlorinators
SIlowvoltage,vertical,
SISyntheticplatetype,superefficient
SIonepiece,mouldedpolymer
1985L x1230Wx1170H 1985L x1825Wx1170H
180kg 220kg
225kg 265kg
319
130
500
364
(CW-H10)
664
(CW-H15)
130DrainOutletposition
145
180
500
410
500
493
410
+20
-0
*Overallheightcanvaryasshownduetomanufacturing
andmaterialtolerances.
859736-A AU1007

Other manuals for Climate Wizard CW-H10

Related product manuals