EasyManua.ls Logo

Daikin FL15EXV1 - Page 13

Daikin FL15EXV1
78 pages
Print Icon
To Next Page IconTo Next Page
To Next Page IconTo Next Page
To Previous Page IconTo Previous Page
To Previous Page IconTo Previous Page
Loading...
10
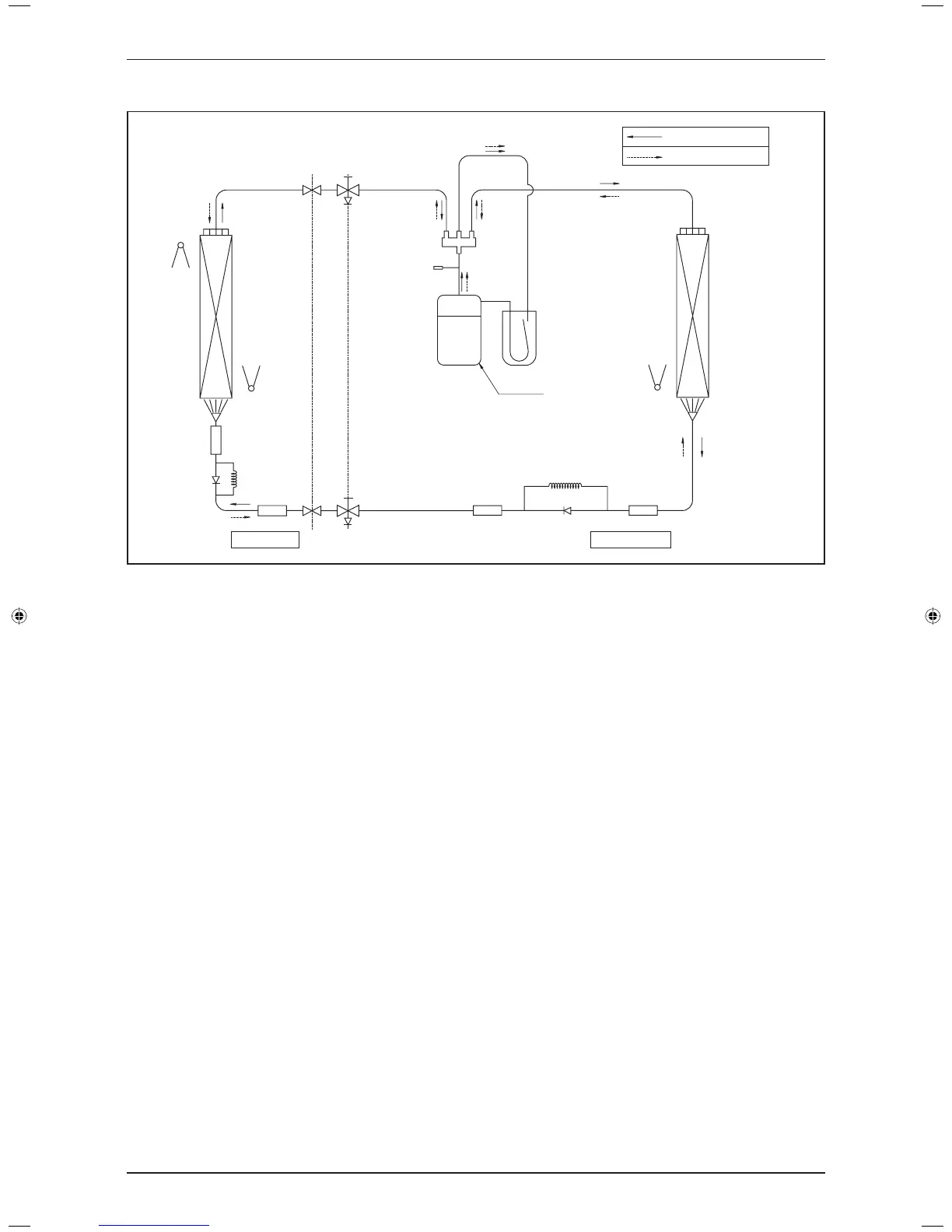
Application Information
Model: FHY62CXV1 – RY61DXY1
COOLING OPERATION
HEATING OPERATION
OUTDOOR UNITINDOOR UNIT
PIPE TEMPERATURE
SENSOR
HEATING CAP. TUBE
STRAINER
CHECK VALVE
STRAINER
HEAT EXCHANGER
(OUTDOOR UNIT)
RETURN
AIR SENSOR
HEAT EXCHANGER
(INDOOR UNIT)
PIPE TEMPERATURE
SENSOR
3 WAY VALVE
PIPING
GAS
PIPING
LIQUID
3 WAY
VALVE
DISCHARGE
STRAINER
STRAINER
CHECK
VALVE
COOLING
CAP. TUBE
4 WAY VALVE
HIGH PRESSURE
SWITCH
ACCUMULATOR
COMPRESSOR
DAIKIN_FL(Y).indb 10DAIKIN_FL(Y).indb 10 9/27/2012 12:13:19 PM9/27/2012 12:13:19 PM

Related product manuals