EasyManua.ls Logo

Danfoss VLT Active Front End AFE 302 - Mechanical Dimensions

Danfoss VLT Active Front End AFE 302
76 pages
Print Icon
To Next Page IconTo Next Page
To Next Page IconTo Next Page
To Previous Page IconTo Previous Page
To Previous Page IconTo Previous Page
Loading...
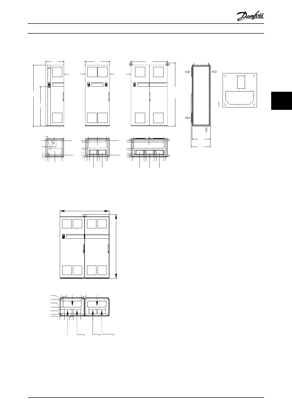
4.2.5 Mechanical Dimensions
ADD 3MM
BETWEEN
TWO CABINET
TO ACCOUNT
FOR GASKET
ADD 3MM
BETWEEN
TWO CABINET
TO ACCOUNT
FOR GASKET
1296.0
ALL CABINET
2003.4
ALL CABINET
597.0 797.0
65.5
0.0
CABINET
BACK
WALL
CABINET
BACK
WALL
CABINET
BACK
WALL
73.0
338.4
540.5
61.1
CABINET FRAME 0.0
68.8
536.0
61.0
CABINET FRAME 0.0
65.5
0.0
140.8
392.7
426.7
678.7
736.0
102.0
695.0
2X 81.4
294.0
2X 219.4
493.5
540.5
CABLE
OPENING
CABLE
OPENING
CABLE
OPENING
AIR INLET
OPENING
AIR INLET
OPENING
AIR INLET
OPENING
AIR INLET
OPENING
AIR INLET
OPENING
AIR INLET
OPENING
2078.4
ALL CABINET
WITH LIFT
BRACKET
1197.0
605.6
635.2
65.5
0.0
61.0
CABINET FRAME 0.0
140.8
430.8
464.8
754.7
788.7
1078.7
89.7
1084.0
1136.0
3X 81.4
3X 222.8
294.0
493.5
540.5
BACK CHANNEL
AIR IN
CABINET
AIR OUT
CABINET
AIR IN
600MM CABINET
BOTTOM VIEW
800MM CABINET
BOTTOM VIEW
1200MM CABINET
BOTTOM VIEW
SEE VIEW A
VIEW A
BACK CHANNEL
AIR OUT
X
130BA661.10
Illustration 4.6 Dimensions
1597.0
2078.4
CABLE
OPENING
AIR INLET
OPENING
2X 61.0
2X 102.0
2X 695.0
2X 736.0
2X 678.7
2X 426.7
2X 392.7
2X 140.8
CABINET FRAME 0.0
0.0
CABINET
BACK
WALL
4X 65.6
4X 81.4
4X 219.4
2X 294.0
2X 493.5
4X 540.5
AIR INLET
OPENING
AIR INLET
OPENING
AIR INLET
OPENING
CABLE
OPENING
130BD821.10
Illustration 4.7 Dimensions 1600 mm Cabinet
How to Install Operating Instructions
MG33X402 Danfoss A/S © Rev. 05/2014 All rights reserved. 27
4 4

Table of Contents