EasyManua.ls Logo

Danfoss VLT HVAC Drive FC 102 - Page 174

Danfoss VLT HVAC Drive FC 102
254 pages
Print Icon
To Next Page IconTo Next Page
To Next Page IconTo Next Page
To Previous Page IconTo Previous Page
To Previous Page IconTo Previous Page
Loading...
c If the ground potential between the drive and the PLC is
dierent, electric noise can occur that disturbs the entire
system. Fit an equalizing cable next to the control cable.
Minimum cable cross-section: 16 mm
2
(6 AWG).
d If long control cables are used, 50/60 Hz ground loops are
possible. Connect 1 end of the shield to ground via a 100
nF capacitor (keeping leads short).
e When using cables for serial communication, eliminate
low-frequency noise currents between 2 drives by
connecting 1 end of the shield to terminal 61. This
terminal is connected to ground via an internal RC link.
Use twisted-pair cables for reducing the dierential mode
interference between the conductors.
Illustration 10.7 Grounding Examples
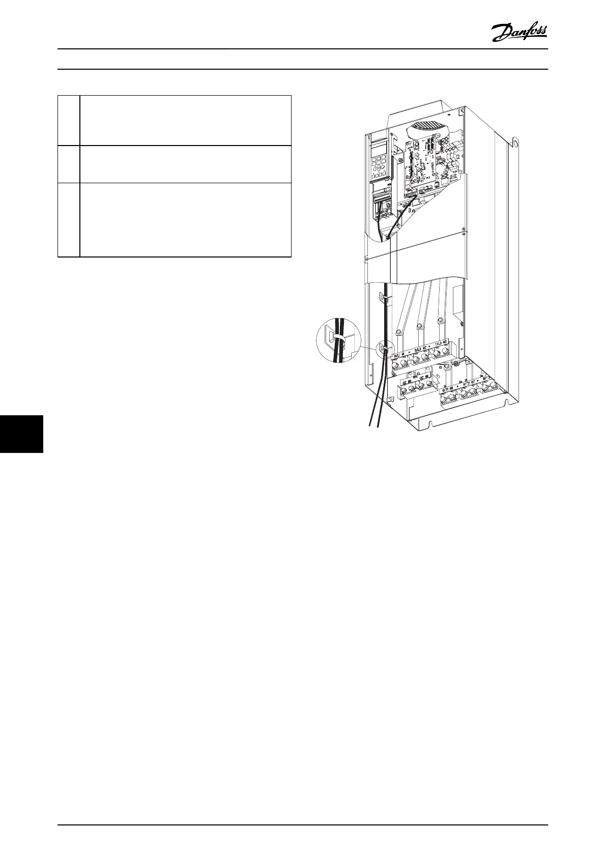
10.4.1 Control Cable Routing
Tie down and route all control wires as shown in
Illustration 10.8 and Illustration 10.9. Remember to connect
the shields in a proper way to ensure optimum electrical
immunity.
Isolate control wiring from high-power cables.
When the drive is connected to a thermistor,
ensure that the thermistor control wiring is
shielded and reinforced/double insulated. A 24 V
DC supply voltage is recommended.
Fieldbus connection
Connections are made to the relevant options on the
control card. See the relevant eldbus instruction. The
cable must be tied down and routed along with other
control wires inside the unit. See Illustration 10.8 and
Illustration 10.9.
130BF994.10
Illustration 10.8 Control Card Wiring Path for the E1 and E2
Enclosures
Electrical Installation Con...
VLT
®
HVAC Drive FC 102
172 Danfoss A/S © 11/2017 All rights reserved. MG16C302
1010

Table of Contents

Other manuals for Danfoss VLT HVAC Drive FC 102

Related product manuals