EasyManua.ls Logo

Danfoss VLT HVAC Drive FC 102 - Page 175

Danfoss VLT HVAC Drive FC 102
254 pages
Print Icon
To Next Page IconTo Next Page
To Next Page IconTo Next Page
To Previous Page IconTo Previous Page
To Previous Page IconTo Previous Page
Loading...
130BF995.10
1
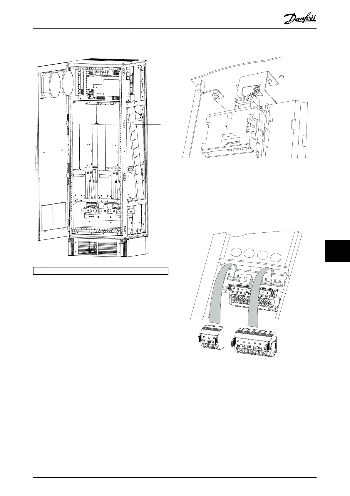
1 Cable tray for routing control cables in F1–F13 enclosures
Illustration 10.9 Control Card Wiring Path for the F1/F3.
Control Card Wiring for the F2/F4 and F8–F13 Use the Same
Path
In the enclosure E drives, it is possible to connect the
eldbus from the top of the unit, as shown in the
following illustrations. On the IP21/54 (NEMA-1/NEMA-12)
unit, a cover plate must be removed.
The kit number for the eldbus top connection is
176F1742.
130BA867.10
Probus Option A
FC300 Service
Illustration 10.10 Top Connection for Fieldbus
10.4.2 Control Terminals
Illustration 10.11 shows the removable drive connectors.
Terminal functions and default settings are summarized in
Table 10.7 Table 10.9.
130BF144.10
Illustration 10.11 Control Terminal Locations
Electrical Installation Con... Design Guide
MG16C302 Danfoss A/S © 11/2017 All rights reserved. 173
10 10

Table of Contents

Other manuals for Danfoss VLT HVAC Drive FC 102

Related product manuals