EasyManua.ls Logo

DCS RGSC-305 - Detailed Wiring Schematic

DCS RGSC-305
58 pages
Print Icon
To Next Page IconTo Next Page
To Next Page IconTo Next Page
To Previous Page IconTo Previous Page
To Previous Page IconTo Previous Page
Loading...
PRELIMINARY
53
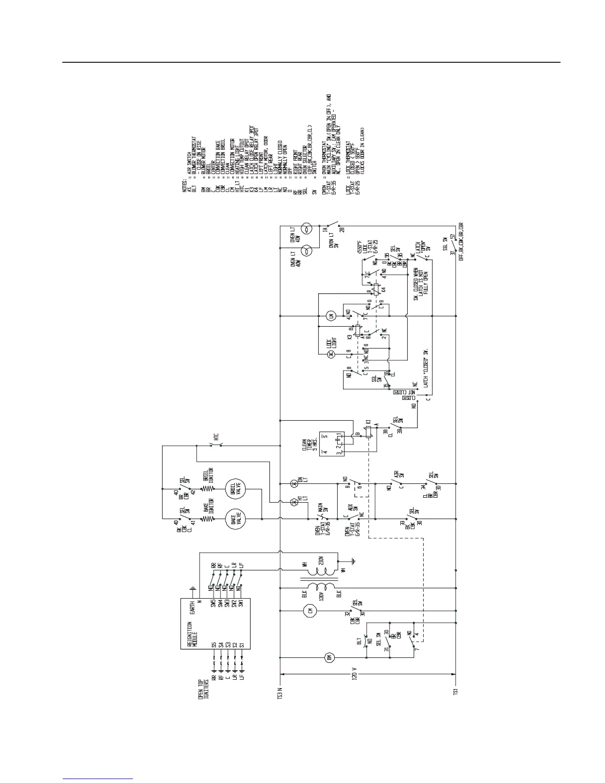
WIRING SCHEMATIC

Other manuals for DCS RGSC-305

Related product manuals