EasyManua.ls Logo

Dorma ED700 - Mounting Pull Arm (0-6 Reveals)

Dorma ED700
26 pages
Print Icon
To Next Page IconTo Next Page
To Next Page IconTo Next Page
To Previous Page IconTo Previous Page
To Previous Page IconTo Previous Page
Loading...
ED700
Low Energy
Automatic Swing Door
DORMA
14
DORMA AUTOMATICS, Inc. 924 Sherwood Drive Toll-Free: 877-367-6211
Lake Bluff, IL 60044 Fax: 877-423-7999
DL3038-010 Rev. B 6/08
E-mail: automatics@dorma-usa.com Subject to change without notice
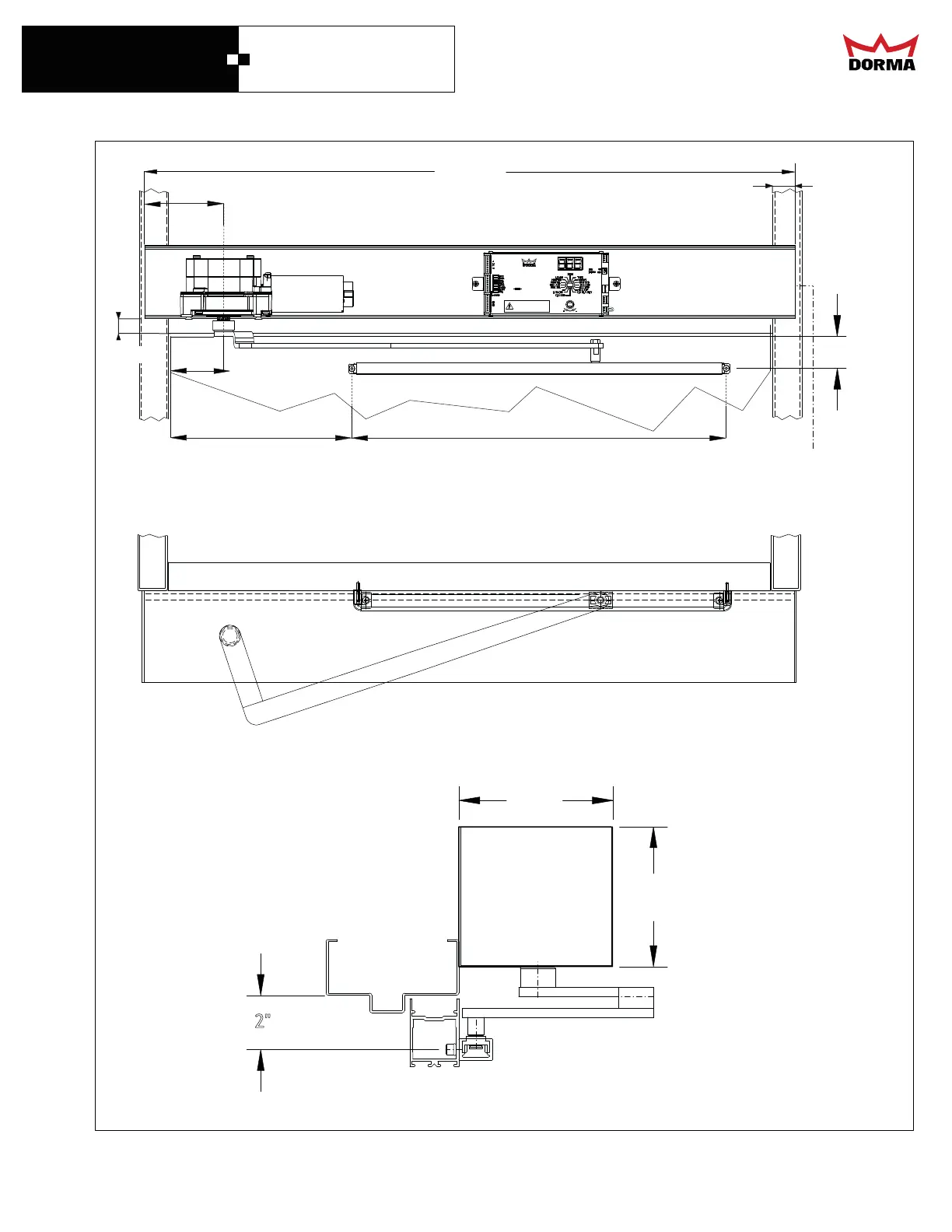
Installation of Surface Applied - Pull Application.
Note:For installation with reveals up to 6”.
Incoming 115VAC
(opposite pivot)
Unit Width
(= Door width + 3
5 1/2"
[140]
5"
[127]
2"
2"
5-1/2
1-1/2
11”
4”
1-
1/4
23-1/2
Mount the Pull Arm (For Reveals up to 6”)
PGM
ENC
Breakout
SYNC
TXD
GND
RXD
MICROPROCESSOR CONTROL
115 VAC 60 Hz 2A
DORMA AUTOMATICS
Phone: 877-367-6211
Motor: 4A slow blow
Line: 2A fast acting
THIS OPERATORCONTROLLER MUST BE
ADJUSTEDTO MEET ANSI STANDARDS
BY DORMATRAINED PERSONNEL

Related product manuals