EasyManua.ls Logo

DSE 334 ATS - Typical Wiring Diagram

DSE 334 ATS
42 pages
Print Icon
To Next Page IconTo Next Page
To Next Page IconTo Next Page
To Previous Page IconTo Previous Page
To Previous Page IconTo Previous Page
Loading...
Installation
16
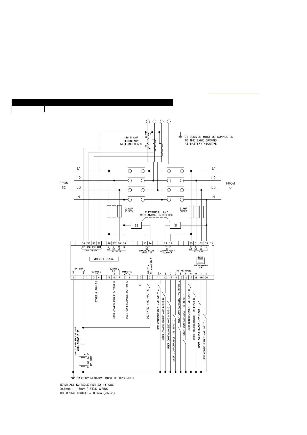
4.2 TYPICAL WIRING DIAGRAM
As every system has different requirements, these diagrams show only a TYPICAL system and do not intend to
show a complete system.
Genset manufacturers and panel builders may use these diagrams as a starting point, however you are referred to
the completed system diagram provided by your system manufacturer for complete wiring detail.
Further wiring suggestions are available in the following DSE publication, available at www.deepseaplc.com.
DSE PART DESCRIPTION
056-022 Breaker Control (Training guide)

Table of Contents

Related product manuals