EasyManua.ls Logo

EDWARDS SYSTEMS TECHNOLOGY EST3 - Page 81

EDWARDS SYSTEMS TECHNOLOGY EST3
98 pages
Print Icon
To Next Page IconTo Next Page
To Next Page IconTo Next Page
To Previous Page IconTo Previous Page
To Previous Page IconTo Previous Page
Loading...
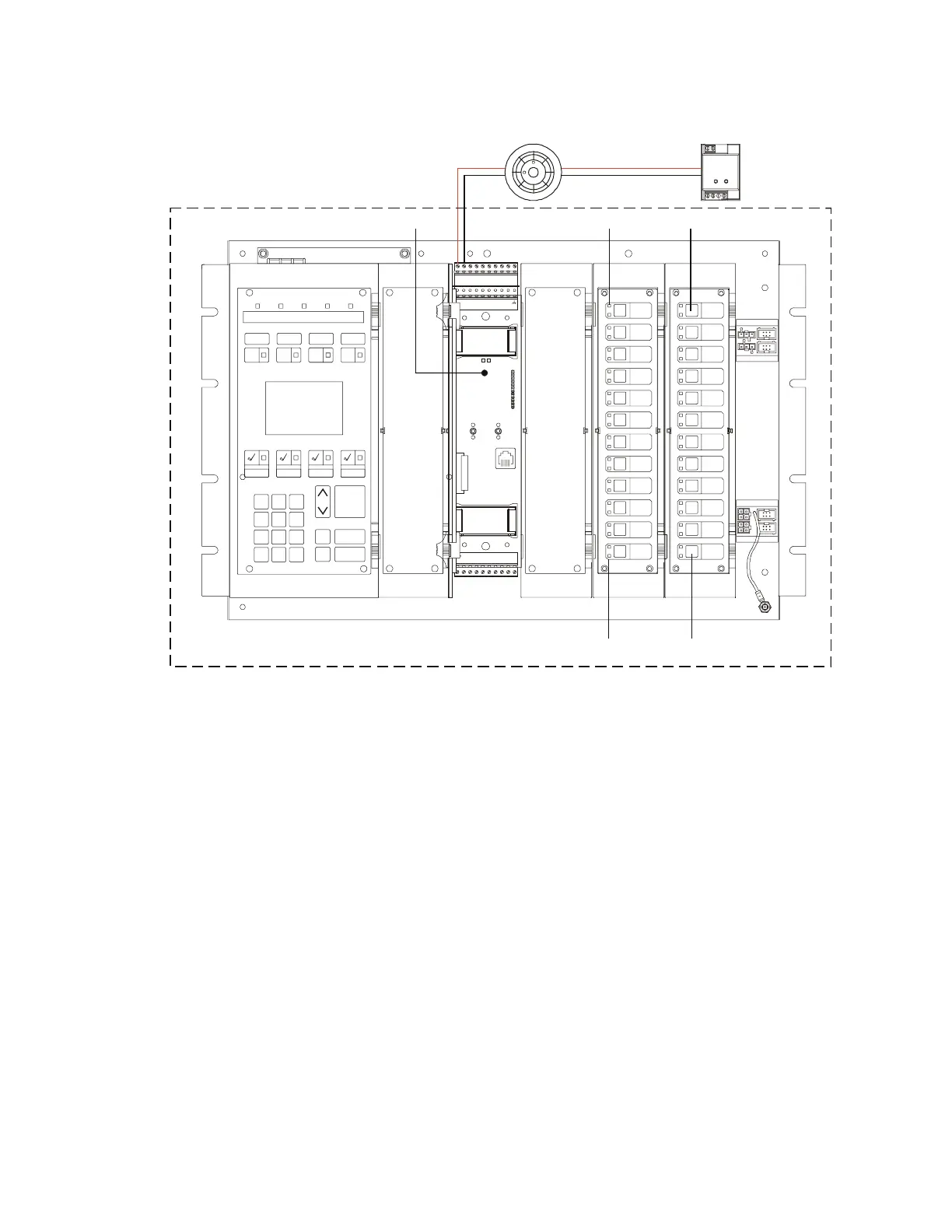
System addresses
EST3 System Operation Manual A.3
OUTPUT MODULE
SIGA2 SIGA2 SIGA2
B
-
B
+
A
-
A
+
S
H
B
-
B
+
P
W
RK
M
S
2
A
-
PB
+
B
-
A
+
SIGA1
SB
+
B
-
KR
WM
1
S
H
SIGA1 SIGA1
0102 01360129 01370001
Signature detectors
01020001 - 01020125
Signature modules
01020126 - 01020250
01360152 01370012
[SYS_ADDR_EX1.CDR]
Cabinet #1
Slot 1 Slot 2 Slot 3 Slot 4 Slot 5 Slot 6 Slot 7
Figure A-1: Addressing example
firealarmresources.com

Table of Contents

Other manuals for EDWARDS SYSTEMS TECHNOLOGY EST3

Related product manuals