EasyManua.ls Logo

Edwards EDS 300

Edwards EDS 300
56 pages
To Next Page IconTo Next Page
To Next Page IconTo Next Page
To Previous Page IconTo Previous Page
To Previous Page IconTo Previous Page
Loading...
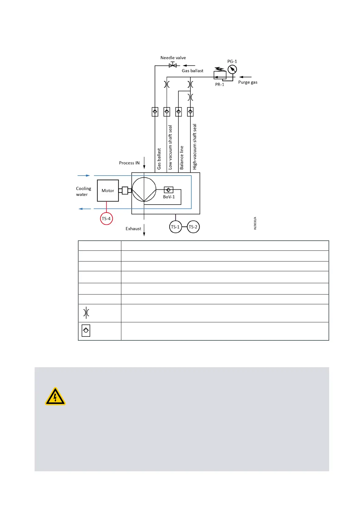
Figure 11 Schemac for purge gas and switches - EDS pump with water cooling
PG-1 Pressure gauge purge gas
PR-1 Pressure regulator purge gas
BoV-1 Blow o valve
TS-1 Pump body thermal snap switch, warning
TS-2 Pump body thermal snap switch, trip
TS-4 Motor thermistor
Flow restrictor
Non-return valve
7.6 Electrical connecons
DANGER: ELECTRIC SHOCK
Electrical shock caused by direct or indirect contact with live parts. Electrical shock due to
faulty electrical connecon and possible residual voltage up to 5 minutes aer
disconnecon from the mains. The electrical connecon may only be carried out by a
trained person. Observe the naonal regulaons in the user country, e.g. for Europe EN
50110 - 1. Prior to servicing, disconnect the vacuum pump from the power supply.
Electrical shock due to interrupon of the protecve conductor system. In the event of a
fault, life-threatening voltages may be present on electrically conducve components.
Before commissioning, check the resistance of the earthing cable and the suitability of
the assigned overcurrent protecon device.
Page 31
A41802880_C - Installaon

Table of Contents

Related product manuals