EasyManua.ls Logo

epic power CAN - 12 Dimensions

epic power CAN
43 pages
Print Icon
To Next Page IconTo Next Page
To Next Page IconTo Next Page
To Previous Page IconTo Previous Page
To Previous Page IconTo Previous Page
Loading...
42
CAN - CANopen Interface
Installation guide
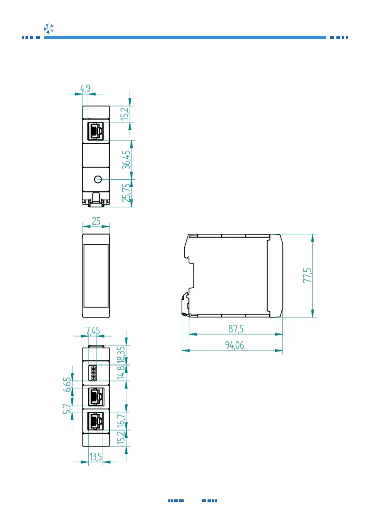
12. DIMENSIONS
Dimensions in mm.