EasyManua.ls Logo

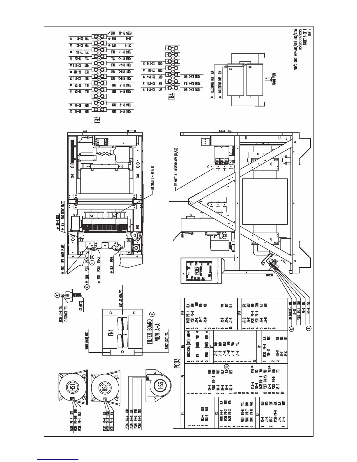
ESAB EPP-360 - PCB Connection Diagrams (Continued)

ESAB EPP-360
64 pages
Print Icon
To Next Page IconTo Next Page
To Next Page IconTo Next Page
To Previous Page IconTo Previous Page
To Previous Page IconTo Previous Page
Loading...
-61-
bp12s

Related product manuals