EasyManua.ls Logo

Evoqua V10K - Mounting Drawings

Evoqua V10K
72 pages
Print Icon
To Next Page IconTo Next Page
To Next Page IconTo Next Page
To Previous Page IconTo Previous Page
To Previous Page IconTo Previous Page
Loading...
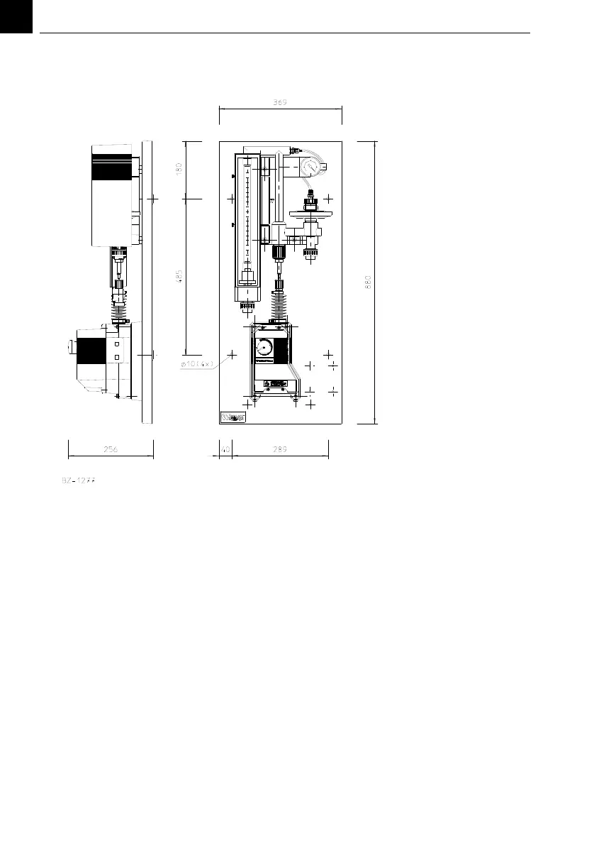
7. Drawings V10k automatic
44
EN
7.2 Mounting drawings
7.2.1 Mounting of chlorinator V10k (with positioner)
Cover removed

Related product manuals