EasyManua.ls Logo

Fike Twinflex V3 - Delayed Zone Configuration Details

Fike Twinflex V3
56 pages
Print Icon
To Next Page IconTo Next Page
To Next Page IconTo Next Page
To Previous Page IconTo Previous Page
To Previous Page IconTo Previous Page
Loading...
Twinflex V3 Control Panel Engineering and Commissioning Manual
33
Delayed Zones – ‘Confirmation Delay’ for Dwelling Areas
Dwelling zones are those covering apartments or private living areas. The activation of any smoke or heat
detector in these areas generates an ‘Alarm Confirmation Warning’ in that area but no indication shows on
the control panel. At the end of the ‘Alarm Confirmation’ time the system will check the detector again to
see if the activation has cleared. If so then the sounders will silence and no further action need be taken.
If, however, the detector is still activated then the entire system will go into alarm, operating all the
sounders on the system.
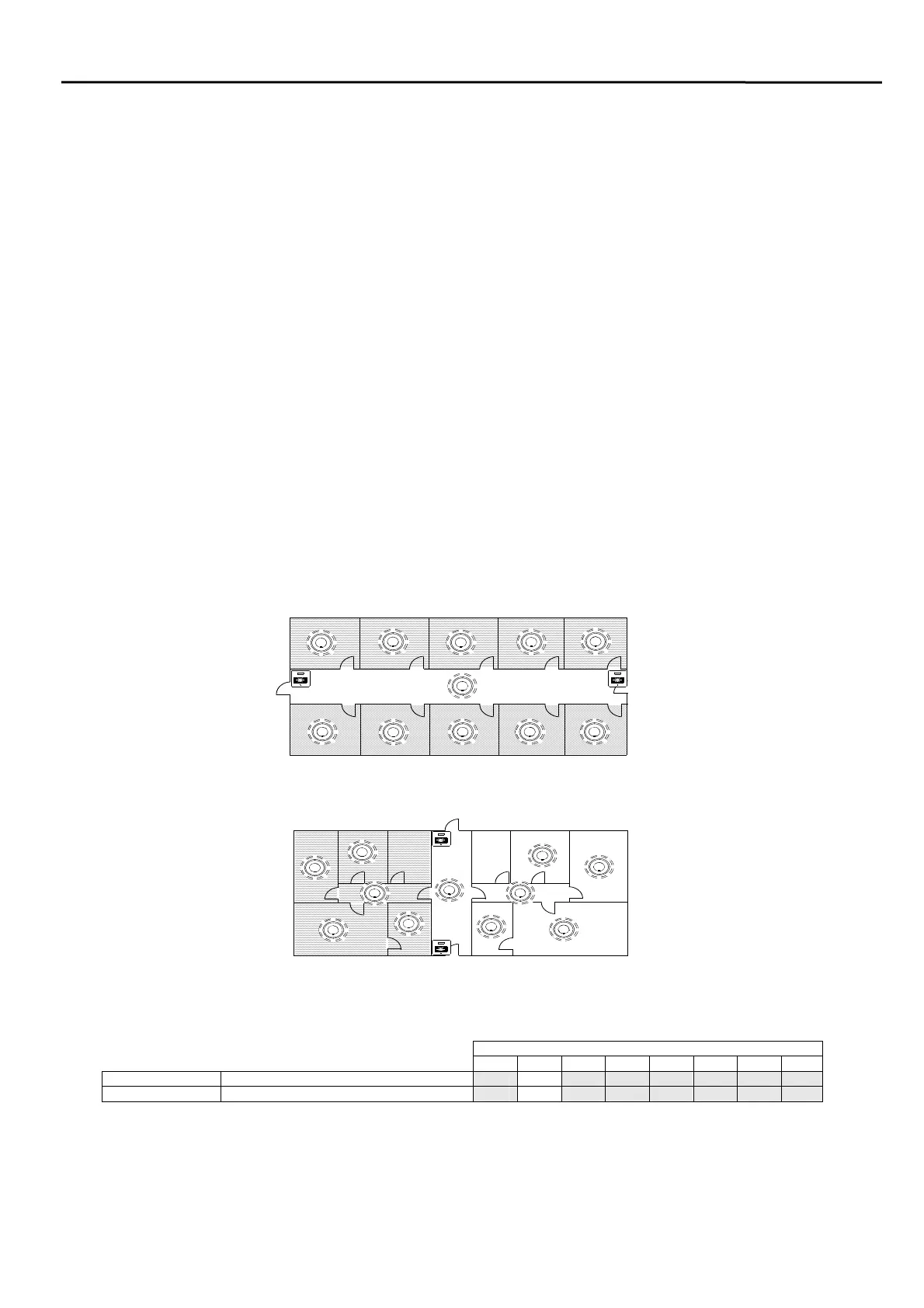
The previous drawing shows a typical arrangement with the dwelling areas shown as Bed-Sit type
apartments. This area should be set as a ‘Delayed Zone’.
The activation of any Manual Call Point in a delayed (communal) zone generates an immediate alarm and
operates the sounders in all areas.
Delayed Zones – Local or Zonal Alarm Confirmation
Whilst a detector is in the ‘Confirmation State’ it may be configured to give an alarm confirmation warning
at just that detector / sounder (Local Alarm Confirmation), or across that entire zone (Zonal Alarm
Confirmation). This continues until the situation is confirmed or reset.
The drawing below shows a number of small apartments on one zone with just one Multipoint detector with
sounder in each apartment. The Alarm Confirmation should be set to operate in a local manner, so that in
the event of an unwanted alarm, only the one apartment is alerted.
The Drawing below shows a larger apartment with several Multipoint detectors. The apartment should be
cabled on its own zone and the Alarm Confirmation Alarm should be set to operate in a Zonal manner, so
that all persons within the apartment are alerted.
The detector DIL switch number 2 may be used to enable the ‘Logical Link’ which links the operation of the
sounder to that individual detector whilst in confirmation warning stage. If this is set to the off position the
Alarm Confirmation Warning will sound in the entire zone.
DIL SWITCH SETTINGS
1 2 3 4 5 6 7 8
Logical Link * Logical link disabled (Zonal Confirmation) 0
Logical link enabled (Local Confirmation) 1
CORRIDOR
FLAT
FLAT
FLAT
FLAT
FLAT
FLATFLATFLATFLAT
FLAT
BED
BED
BED
BED
LOUNGE
KIT
HALL
CORRI DOR
KIT
LOUNGE
HALL
BATH
BATH

Table of Contents

Related product manuals