EasyManua.ls Logo

FlyTech POS485 - 6-1. D36 V2.1 Motherboard

FlyTech POS485
44 pages
Print Icon
To Next Page IconTo Next Page
To Next Page IconTo Next Page
To Previous Page IconTo Previous Page
To Previous Page IconTo Previous Page
Loading...
22
RJ11_1
USB2
RJ45_1
USB1
RJ45_2
USB3
RJ48_1
VGA1
PWR1/PWR2
SW1
CN20
CN19
JP7
CN25
CN18
CN17
CN15
SATA1/SATA2
CN14
CN13
JP6
CN24
CN12
SATA1
CN8
MINI_PCIE1
CN23
CN11
CN9
JP4
CN7
CN10
JP1
CN1
CN2
CN5
CN6
JP2
JP3
CN3
DDR3_A1
BAT1
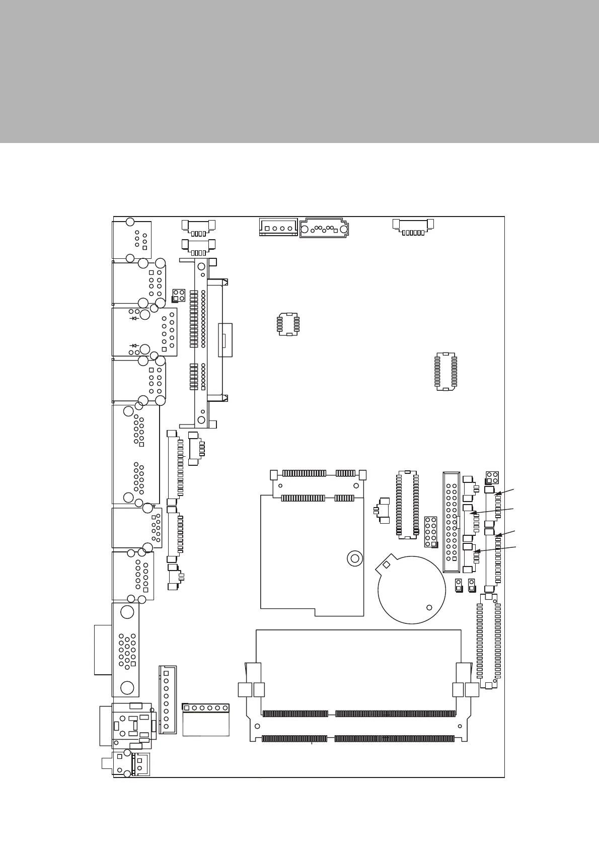
6. &RQÀJXUDWLRQ
6-1.
D36 V2.1 Motherboard
6-1-1.
Motherboard Layout

Related product manuals