EasyManua.ls Logo

Freestyle 80 - Page 45

Freestyle 80
128 pages
Print Icon
To Next Page IconTo Next Page
To Next Page IconTo Next Page
To Previous Page IconTo Previous Page
To Previous Page IconTo Previous Page
Loading...
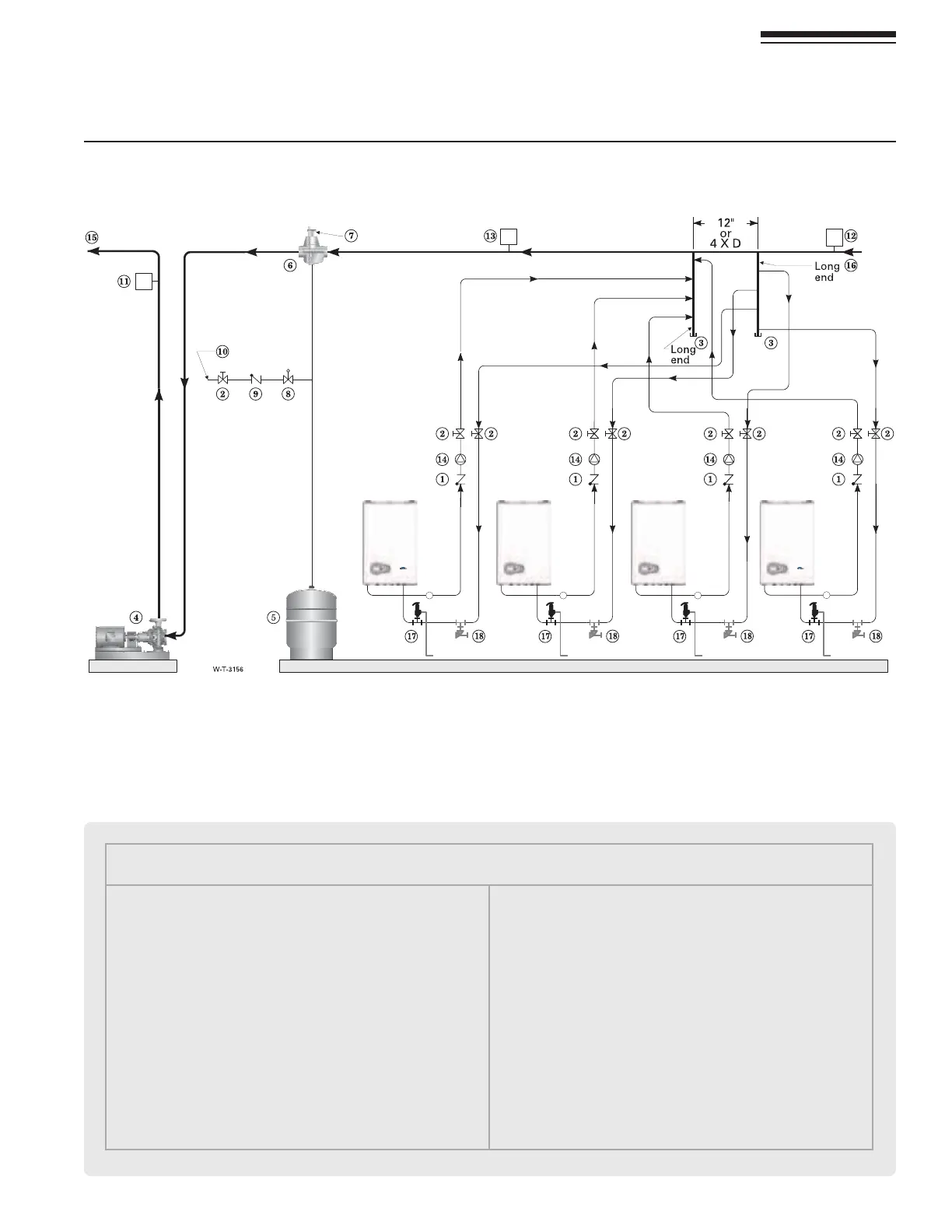
Figure 52 0IPINGSCHEMATICTYPICALPIPINGFORMULTIPLE FreeStyle
®
(EATING/NLYBOILERS
Part number 550-142-850/0716
45
FreeStyle
®
WALL MOUNT GAS-FIRED WATER BOILERBoiler Manual
18
Multiple boiler installations
(continued)
Legend for Figure 52
1 Flow/check valve
2 Isolation valves (when used)
3 Cap
4 Primary circulator
5 Expansion tank (diaphragm type)
6 System air eliminator
 System automatic air vent
8 Pressure reducing valve
9 Check valve or backflow preventer, as required by appli-
cable codes
10 Cold water supply
11 Supply water temperature control (when used)
12 ,OWWATERCUTOFFWHENUSEDPLACEABOVEPRIMARY
header)
13 Water flow switch (when used)
14 Boiler circulators
15 System supply
16 System return
 "OILER04GAUGERELIEFVALVEANDDISCHARGEPIPINGINSTALLED
per FreeStyle®"OILER-ANUAL
18 Purge/drain valve

Table of Contents

Other manuals for Freestyle 80

Related product manuals