EasyManua.ls Logo

Frick QUANTUM 3 - QUANTUM 4 FLOW DIAGRAM - D.C. VOLTAGE; COMMUNICATIONS HARNESS

Frick QUANTUM 3
118 pages
Print Icon
To Next Page IconTo Next Page
To Next Page IconTo Next Page
To Previous Page IconTo Previous Page
To Previous Page IconTo Previous Page
Loading...
S90-010 M FRICK
QUANTUM™ COMPRESSOR CONTROL PANEL
Page 12 MAINTENANCE
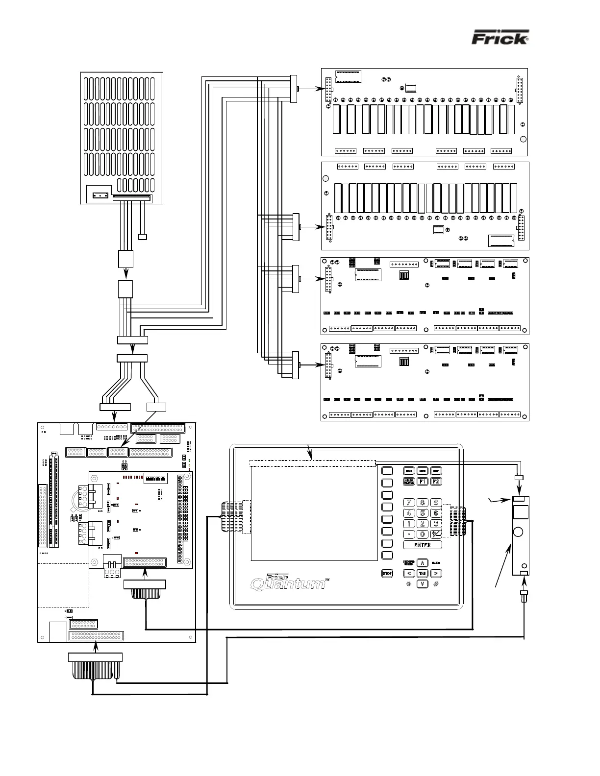
QUANTUM™ 4 FLOW DIAGRAM - D.C. VOLTAGE / COMMUNICATIONS HARNESS
Keypad Cable
P/N
640B0031H01
Quantum™ 4
Quantum™ 4 Adapter
Harness
P/N 649B0862H01
Digital
Board 1
Digital
Board 2
Analog
Board 2
Analog
Board 1
Power
Supply
(Condor
shown).
Factory
Connector
DC Power -
I/O Communications
Harness
P/N 640B0038H01
Inverter
P/N
333Q0001582
This pictorial represents a typical configuration using the Quantum™ 4,
and is not to scale. Specific units may or may not have both Digital and
Analog boards, depending on options. Additionally, the power supply
may vary. The pictorial is meant to show the proper interconnection of
the D.C. power - I/O communications harness, keyboard cable and
display harness and hardware components.
Display/Inverter Cable
P/N 649D4824H01
P
P
Flash Card
socket
located under
board
1
2
3
4
3
2
1
3
1
2
4
Backlight Tube (refer to Display Assembly
Component Replacement Guide)
Display (refer to
Display Assembly
Component
Replacement
Guide)
Caution!
High AC
voltage at this
connector.

Table of Contents

Related product manuals