EasyManua.ls Logo

Frick RWB II - P & I Diagrams

Frick RWB II
56 pages
Print Icon
To Next Page IconTo Next Page
To Next Page IconTo Next Page
To Previous Page IconTo Previous Page
To Previous Page IconTo Previous Page
Loading...
RWB II ROTARY SCREW COMPRESSOR UNITS
MAINTENANCE
S70-200 IOM
Page 43
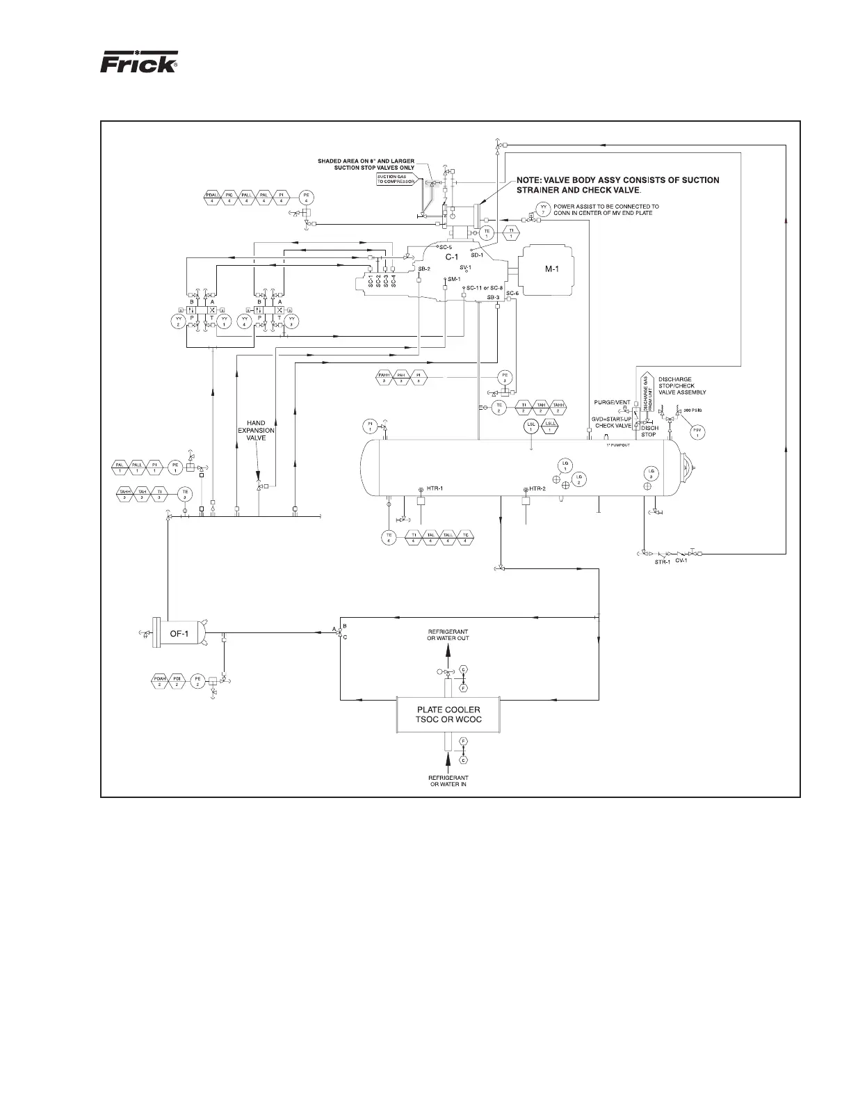
P & I DIAGRAM

Table of Contents

Other manuals for Frick RWB II

Related product manuals